Westfield Road, Saundersfoot, SA69
Info
- Stunning Detached House In A Peaceful Location
- A Blend Of Period Features & Chic Modern Design
- 3 Bedrooms, 3 Bathrooms, 2 Receptions Rooms
- Ample Off Road Parking
- Sizeable Mature Gardens To The Front & Rear
- Currently A Highly Successful Holiday Letting Property
- Within A Short Walk Of The Village Centre, Beaches, Pubs & Restaurants
- A Superb Family Home Or Investment
- No Upward Chain
- EER - TBC
Property Summary
The Property
THE PROPERTY
Currently running as a successful holiday let, Incline Villa occupies a secluded location within a short walk of the village centre and beaches in one of Pembrokeshire's most popular holiday resorts, with the Sunday Times naming Saundersfoot as one of the best places to live by the sea in the UK in 2024. This gorgeous detached house offers beautifully presented accommodation with a blend of original charm and contemporary features, comprising Living Room, Lounge, Kitchen/Dining Room, and Shower Room on the Ground Floor and Three Bedrooms and main Bathroom on the First Floor, with the Master having En Suite facilities. Externally, a block paved driveway at the side provides ample off road parking for three cars. There are mature gardens at both front and rear, with a south facing Mediterranean style courtyard providing the perfect spot for al fresco dining and relaxing. The beautiful beaches, harbour, restaurants, bars and shops are all a short walk away along a flat, tarmacked footpath. Incline Villa would make a wonderful family home or holiday let and viewing is highly recommended.
Entrance
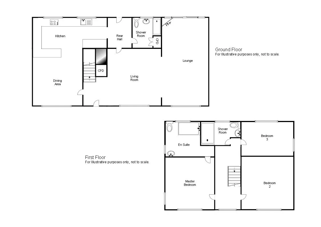
Enter through glazed uPVC door with fanlight above. Opening to Living Room. Door to Kitchen/Dining Room. Stairs to First Floor with large cupboard under. Oak flooring.
Living Room - 3.7m x 3.7m (12'1" x 12'1")
Window to front. Opening to Lounge. Door to Rear Hall.
Lounge - 6.4m x 4.3m (20'11" x 14'1")
Window to front. Sliding glazed doors and window to rear. Log burner with slate hearth and tiled surround.
Kitchen/Dining Room - 6.2m x 5.7m (20'4" x 18'8") L shape
L shape room. One window to front and two to rear. Doorway to Rear Hall. The Kitchen is fitted with a range of wall and base units with matching tiled worktop extending to breakfast bar. Integral four ring electric hob and oven. Space and connection for fridge freezer and under counter washing machine and dishwasher. Wall mounted Ideal gas combi boiler. Inset ceramic sink and drainer with filtered mixer tap over. Ample space for family sized dining suite. Part tiled walls and tiled floor.
Rear Hall
Hardwood glazed door to rear giving access to the rear garden. Door to Shower Room. Tiled floor.
Shower Room
Frosted window to rear. Fitted with matching suite comprising WC, pedestal wash hand basin and mains shower in level access enclosure. Double door to large airing cupboard.
First Floor Landing
Window to front. Split level landing with Master Bedroom and Bedroom 2 at the front, and Bedroom 3 and Main Bathroom at the rear.
Master Bedroom - 3.9m x 3.7m (12'9" x 12'1")
Double aspect with windows to front and side. Door to En Suite Bathroom.
En Suite Bathroom
Double aspect with windows to side and rear. Fitted with matching suite comprising WC, wash hand basin and corner bathtub. Part tiled walls. Laminate floor. Heated towel rail.
Bedroom 2 - 3.7m x 3.6m (12'1" x 11'9")
Window to front.
Bedroom 3 - 3.6m x 2.2m (11'9" x 7'2")
Double aspect with windows to side and rear.
Main Bathroom
Window to rear and internal obscured window to the Landing. Fitted with matching suite comprising WC, stone wash hand basin, and mains shower in level access glazed enclosure. Part tiled walls. Vinyl flooring.
Externally
The property is approached from the front via a block paved driveway which provides ample off road parking for multiple vehicles. There are sizeable mature gardens to both the front and rear, mainly laid to lawn with mature shrubs and trees. A paved south facing area provides a beautiful space for al fresco dining and relaxing in the eco-friendly log fired hot tub, which is available to purchase via separate negotiation.
Property Information
We are advised the property is Freehold, with all mains services connected.
Council Tax Band F.
Directions
From Tenby follow the A478 north. At the New Hedges roundabout turn right to Saundersfoot and proceed down the hill into the village. Follow the one way system and turn left onto the Ridgeway. Take the first left onto Westfield Road, follow the road for approximately a quarter of a mile and the property will be found on the left hand side at the end, just opposite Westfield Court.






























