Warren Street, Tenby, SA70
Info
- Freehold Victorian Town House Currently Configured As Two Separate Apartments
- Ground Floor Apt - 1 Bed 1 Bath 1 Reception Plus Courtyard Garden & Cellar
- First Floor Apt - 2 Bed 1 Bath & WC, 2 Reception Plus Sun Terrace & Loft Room
- Spacious & Well Appointed Accommodation Over Four Floors
- Ideal For Multi Generational Living Or To Let Out For An Income
- Fantastic Investment Opportunity
- Easy Walking Distance To The Beach & Town Centre
- Gas Central Heating & uPVC Double Glazing
- Ideal Central Location
- EER - E
Property Summary
The Property
THE PROPERTY
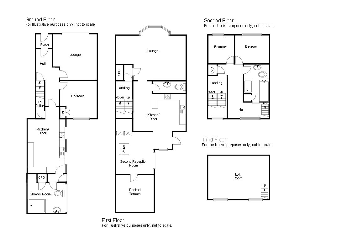
Blackbear x Chandler Rogers are delighted to present Melrose to the open market; an imposing Victorian Townhouse, currently configured as Two Separate Apartments offering spacious and well appointed accommodation arranged over four floors. The Ground Floor Apartment comprises Lounge, Kitchen/Breakfast Room, One Double Bedroom, Shower Room, a rear courtyard garden and a large Cellar. The Second Apartment, a First Floor Maisonette, is accessed via an original sweeping staircase and split across the Three Upper Floors. The First Floor comprises the Lounge, Kitchen, a Second Reception Room with access to a rear decked Sun Terrace, and a WC. The Second Floor comprises Two Double Bedrooms and a Family Bathroom. The Loft has also been converted to a versatile room ideal for use as a Third Bedroom, with two dormer windows and exposed beams. The property is a great investment and has lots of potential, either to keep as two dwellings or would make a beautiful family home. A two min walk away from the historic town of Tenby with its gastro restaurants, boutique shops, and beautiful beaches.
Porch
Enter through hardwood door into Porch. Frosted glazed door to the shared Hallway. Two built in cupboards housing the gas and electric meters and fuse boards. Original quarry tiled flooring.
Hallway
Door to Ground Floor Apartment. Security door to the staircase to the First Floor Maisonette.
GROUND FLOOR APARTMENT
Inner Hall
Doors to the Lounge, Bedroom and Kitchen
Lounge - 4.21m x 4.8m (13'9" x 15'8")
Bright and spacious Lounge with large double glazed window to the front. Wood flooring.
Bedroom - 3.6m x 3.97m (11'9" x 13'0")
Double bedroom with double glazed window to the front. Wood flooring.
Kitchen/Dining Room - 4.41m x 2.79m (14'5" x 9'1")
With two double glazed windows to the side. Doors to the Cellar, and to Rear Porch. Wall mounted Worcester gas combi boiler. Fitted with a range of wall and base units with matching worktop. Integrated gas 4-ring hob and electric oven. Inset stainless steel sink and drainer with mixer tap. Space and connection for washing machine. Part tiled walls. Tiled floor. Ample space for family sized dining suite.
Cellar/Workshop - 5.24m x 2.72m (17'2" x 8'11")
Power connected. Split into 2 rooms. Ideal for storage.
Rear Porch
Semi-glazed door giving access to the rear courtyard garden. Door to Shower Room. Tiled floor.
Shower Room - 1.91m x 3.1m (6'3" x 10'2")
Frosted window to the side. Large glazed shower enclosure with mains connected waterfall shower. WC and pedestal wash hand basin. Tiled floor. Water resistant panelling to the walls. Door to built in cupboard.
Courtyard Garden
A low maintenance courtyard enclosed by rendered stone wall; a great spot for al fresco dining and relaxing.
FIRST FLOOR MAISONETTE
Enter through the security door to the original sweeping staircase up to the First Floor Maisonette.
Hallway
Door to Lounge and door to built in closet.
Lounge - 5.66m x 4.07m (18'6" x 13'4")
Large Lounge with bay window and second window to the front.
WC
WC and wash hand basin. Wood flooring. Partly tiled walls.
Kitchen/Breakfast Room - 3.56m x 2.94m (11'8" x 9'7")
Fitted with a range of base units with granite effect splashback and worktop extending to breakfast bar with space for two seats . Wall mounted Vaillant gas combi boiler. Integral 5-ring gas hob and electric oven with extractor over. Stainless steel sink and drainer. Space and connection for washing machine and fridge freezer. Glazed door to side. Window to the rear. Steps down to the right to access the Second Reception Room. Door to WC. Wood flooring
Second Reception Room - 4.06m x 2.68m (13'3" x 8'9")
Accessed via the kitchen with a double glazed window to the side, and a Velux to the opposite side. Doors to built-in cupboard. uPVC double glazed door to decked Sun Terrace.
Sun Terrace
A sizeable Sun Terrace with a timber deck offering a great spot for al fresco dining and relaxing.
Landing
Window to rear on the Half Landing. Door to Hall. Stairs to Upper and Lower Floors.
Hall
L shape Hall. Doors to all rooms. Window to rear. Stairs to Loft Room.
Bedroom 1 - 4.04m x 2.55m (13'3" x 8'4")
Window to the front. Built-in cupboards.
Bedroom 2 - 4.01m x 1.96m (13'1" x 6'5")
Window to the front. Built-in cupboards.
Shower Room - 2.99m x 2.42m (9'9" x 7'11")
Internal glass brick window to rear. Fitted with matching suite comprising double ended bath with mixer tap, WC and pedestal wash hand basin. Mains waterfall shower in separate glazed enclosure. Fully tiled walls and floor. Heated towel rail.
Loft Room - 5.58m x 5.35m (18'3" x 17'6")
Two Dormer windows to the rear. Exposed beams.
Property Information
We are advised the property is Freehold with all mains utilities connected, with both flats having their own separate gas combi boilers.
The property sits within council tax band E.
Directions
From our office proceed North on Upper Frog Street. Turn left onto White Lion Street. At the junction go straight over to Warren Street. Melrose will be found about two thirds of the way down Warren Street on the right.
























