Templebar Road, Kilgetty, SA68
Info
- Beautiful Detached Bungalow With Bright & Welcoming Accommodation
- Gas Central Heating & uPVC Double Glazing
- Vacant Possession With No Upward Chain
- A Wonderful Family Home
- Ample Off Road Parking For Multiple Vehicles, & Garage
- Stunning Generous South-Westerly Facing Garden and large patio area
- 3 Double Bedrooms, Family Bathroom & Shower Room
- EER - TBC
Property Summary
The Property
THE PROPERTY
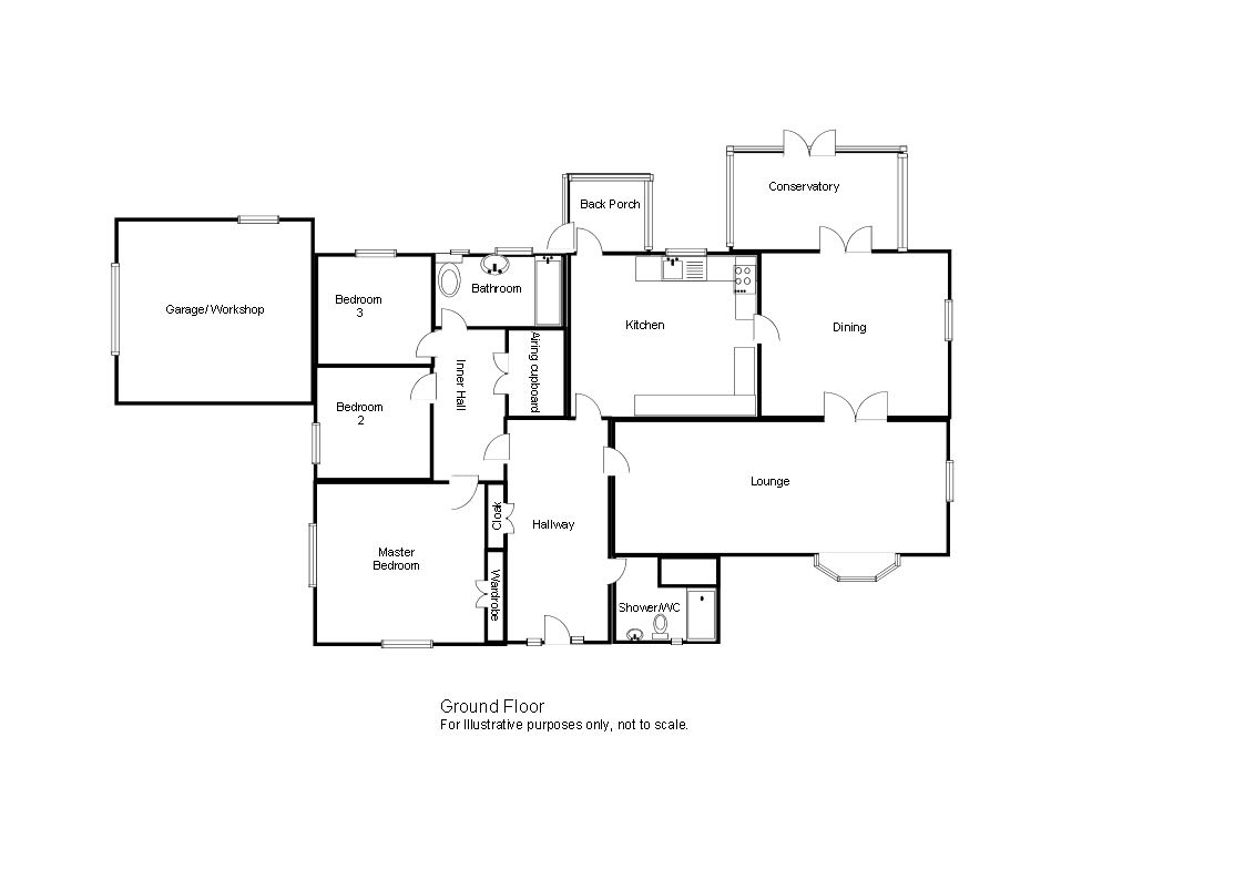
A beautifully presented detached bungalow set with 1-acre of land situated in the peaceful hamlet of Pentlepoir. The spacious and well appointed accommodation comprises Entrance Hall, Shower Room with WC, large bright Lounge, Dining Room, Conservatory, Kitchen, Back Porch. There is an Inner Hallway leading to three double bedrooms, and a family bathroom. Externally to the front of the property there is a large driveway with ample off road parking for multiple vehicles and a large lawned area, as well as an adjoining single garage. At the rear of the property is a large paved patio area accessed from the conservatory and the back porch, which opens out onto a very generous and well maintained south facing mature garden, laid mainly to lawn with borders and trees, from where you can enjoy tranquil views over the countryside beyond. The village of Pentlepoir is within a short drive of the beautiful seaside fortified town of Tenby, the villages of Saundersfoot and Amroth with its beautiful beaches.
Hallway - 5.94m x 2.01m (19'6" x 6'7")
Enter through the composite door with decorated glazing and glazed side panels into the spacious Hallway. Doors to various room and the Inner Hallway. Doors to large double cupboard with storage.
Shower Room
Frosted round window to front. Fitted with matching modern suite comprising WC, wash hand basin in vanity unit, and mains shower in glazed enclosure. Heated towel rails. Fully tiled walls and floor, with underfloor heating.
Lounge - 7.32m x 4.88m (24'0" x 16'0")
Spacious airy lounge with bay window to the front and a further window to the side. Gas flame effect fire with surround. Semi glazed double doors to dining room with views through to the conservatory and the rear garden.
Dining Room - 4.11m x 3.35m (13'6" x 11'0")
Accessed via the Lounge or the Kitchen with ample room for family dining suite. uPVC double doors leading to conservatory with view across the rear garden.
Conservatory
Conservatory accessed via uPVC double doors from the Dining Room, with breathtaking views of the rear garden and the countryside beyond.
Kitchen/Breakfast Room - 4.75m x 3.89m (15'7" x 12'9")
Large Kitchen/Breakfast Room accessed via the Dining Room and the Hallway. Large window to rear. Door to Back Porch. Fitted with a range of matching wall and base units and co-ordinating worktop. Integral appliances comprising electric hob with extractor over, double electric oven. Integral fridge freezer and dishwasher. Space and connection for washing machine. Inset 1.5 stainless steel sink with mixer tap over. Ample space for breakfast dining set. Tile effect vinyl flooring.
Inner Hallway
Second Hallway with doors to double storage cupboard housing gas fired combi boiler. Doors to Bedrooms and Bathroom. Loft hatch.
Bedroom 1 - 6.17m x 3.51m (13'87" x 11'6")
Large window to the front overlooking the front garden area. Two built in large storage cupboards. Bright and airy room.
Bedroom 2 - 4.75m x 3.05m (10'67" x 10'0")
Double bedroom with window to the side.
Bedroom 3 - 3.35m x 4.75m (11'0" x 10'67")
Double bedroom with window to the rear overlooking the rear garden with the views across the countryside.
Bathroom - 2.59m x 1.83m (8'6" x 6'0")
Large bright bathroom with 2 frosted windows to the rear. Double-ended bath with central mixer tap.. Built-in vanity unit and WC with large sink area. Heated towel rail. Fully tiled walls and floor.
Back Porch
Glazed back porch with uPVC doors accessing the rear garden
Garage
Single storey garage adjoining house, extending out into a workshop, with vehicle access from the front and access via the rear. Up and over door to front.
Externally
The property is approached over a long tarmac driveway which provides ample off road parking for multiple vehicles and leads to the integral garage. A parking bay at the front of the garage provides an ideal spot to park a motorhome or even a small boat. A paved pathway to the left of the garage leads to the beautiful South facing garden and large patio area. To the right of the property access can be made via a well kept lawn. To the front of the property there is a well kept lawn. To the rear of the property is a large paved patio area which would be perfect for entertaining. The patio area extends the full length of the house and leads onto the substantial garden providing breath-taking views across the countryside, providing a tranquil spot to relax.
Property Information
We believe the property to be Freehold, with all mains services connected.
Council Tax Band F.
Directions
From Tenby travel north towards Kilgetty for about three miles until you reach to the village of Pentlepoir. Continue through the village for a short distance and take the left turn at the mini-roundabout opposite The Old Pump filling station onto Templebar Road. New Haven will be found on the left hand side as indicated by our For Sale board.

























