Style House, Jameston, SA70
Info
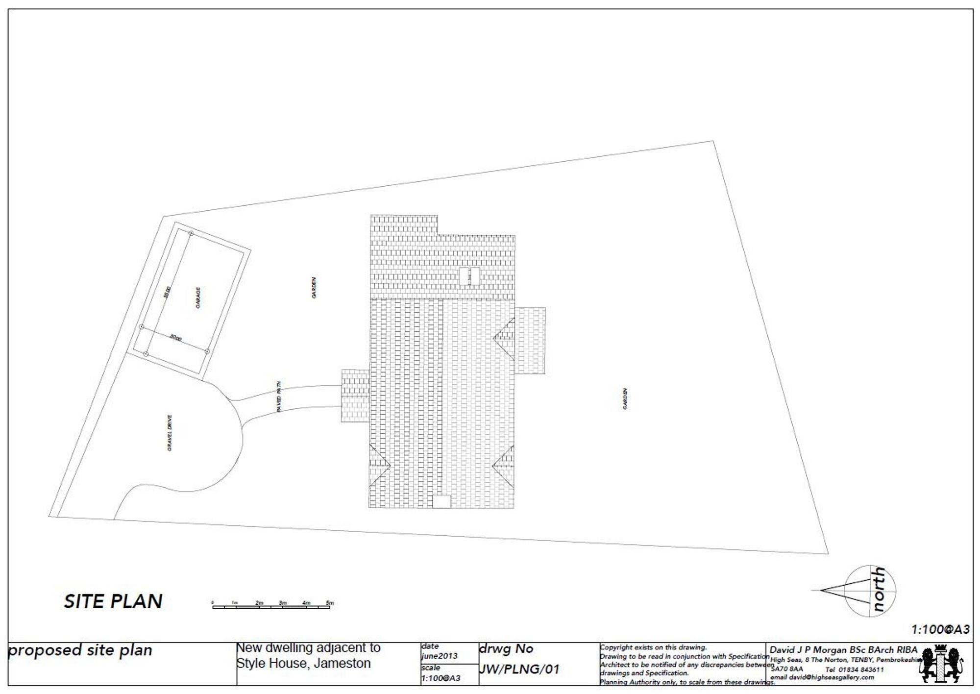
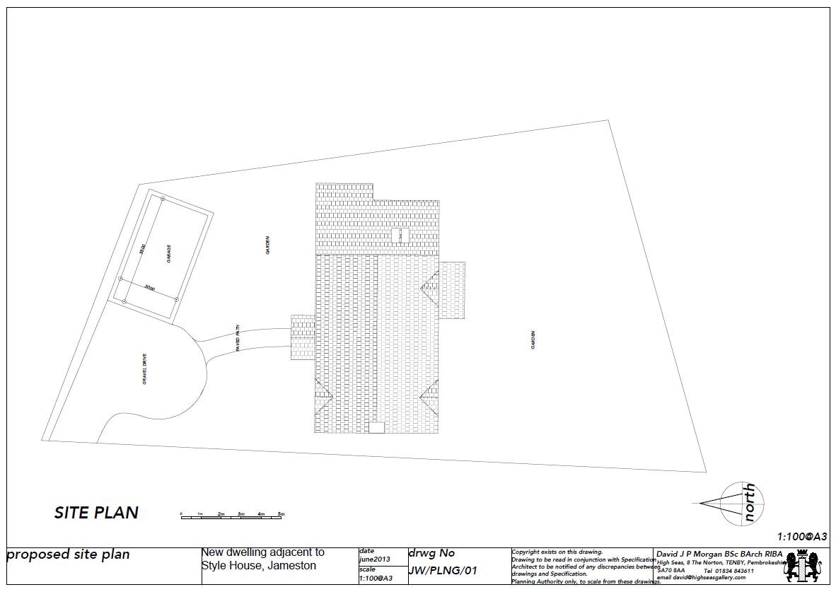
- Level Building Plot
- With Road Access
- Approx 33m x 19m
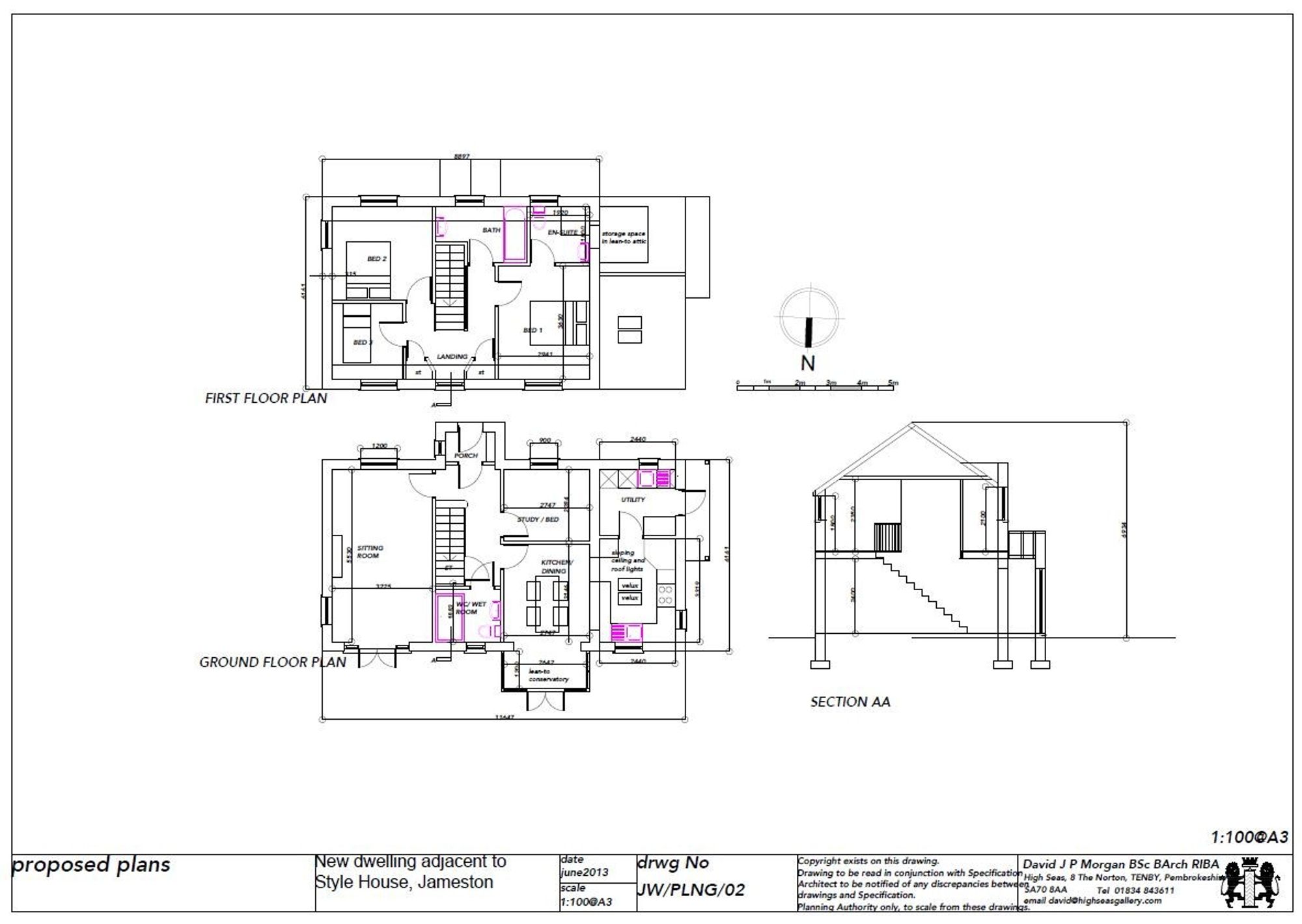
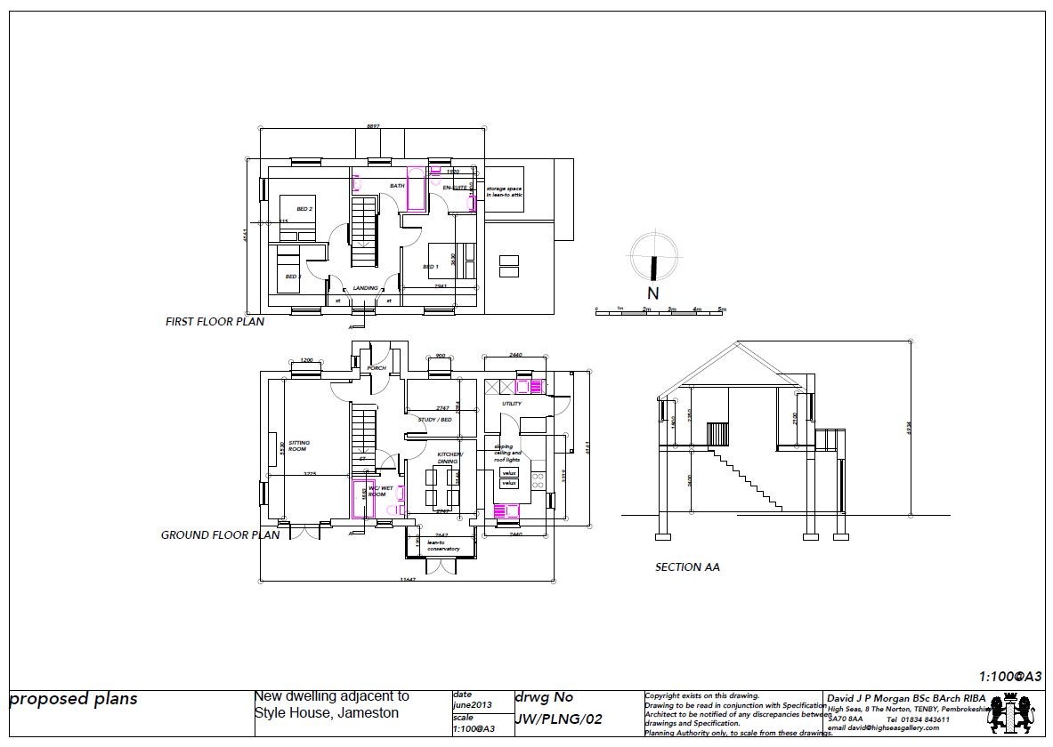
- Preliminary Planning Permission In Place To Construct 3 Bed 2 Storey House
- Semi Rural Village Location
- Close To Schools, Town & Amenities
Property Summary
The Property
The Property
A rare opportunity to purchase a sizable building plot (approx 33m x 19m) with Preliminary Planning Permission in place for the construction of 2 storey 3 bedroom detached dwelling on a vacant plot in the popular semi rural village of Jameston. The plot is situated adjacent to Style House and the Village Hall and includes its own private access via a lane. The plot offers fabulous views over the rolling countryside, and is only a short distance from the popular resorts of Tenby, Saundersfoot, and Manorbier Village, with amenities such as pubs, restaurants and schools at all levels, with excellent public transport links. The beaches at Swan Lake Bay and Manorbier are within walking distance.
Planning ref: PA/23/0134
Agent's Notes
The new owner will need to enter a legal agreement to pay a contribution to the Local Authority affordable housing fund.
The dwelling will be able to be used as a main residence, holiday let or a second home.
The preliminary planning application suggested a building a little smaller than this would be considered favourably.
An additional parcel of land adjacent to the Building Plot is also available to purchase via a different seller through Blackbear.
AGENT'S NOTE: We are advised that the first quarter of the access lane adjacent to the Village Hall to the end of the wall is common land, the remainder is part of the curtilage of the Plot.
















