Stepaside, Narberth, SA67
Info
- Superb Detached Cottage
- 3 Double Bedrooms, 2 Shower Rooms & Cloakroom
- Beautiful Views Over The Valley
- Upside Down Configuration
- Terraced Rear Garden With Decked Seating Area & Glass Canopy
- Ample Off Road Parking
- Easy Walking Distance To The Beach At Wiseman's Bridge
- Amazing Family Home Or Holiday Property
- Oil Central Heating
- EER - C
Property Summary
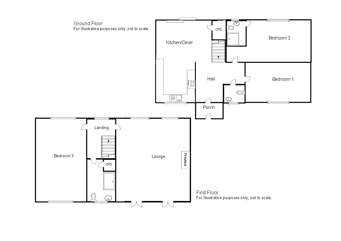
The Property
THE PROPERTY
Sea Breeze is a superb detached cottage with upside down configuration allowing the superb views over the valley and woodland to be enjoyed from the first floor lounge. The beautifully presented accommodation comprises Entrance Porch, Hallway, Cloakroom, Kitchen/Diner and Two Double Bedrooms, one of which is en-suite, on the ground floor. The first floor accommodation consists of Lounge, Bedroom and Family Bathroom. The property further benefits from oil fired central heating and uPVC double glazing throughout. To the front is a paved driveway with parking for several cars with a lawned area to the side and a paved patio The enclosed terraced rear garden, which can be accessed from both sides of the property, has a newly installed composite decked seating area with an attractive glass canopy with steps leading up to the raised lawn with views over the valley and woodland beyond. The property is in a popular location within walking distance to the beach at Wiseman's Bridge, and a short drive away from the villages of Saundersfoot and Kilgetty with their attractions and amenities, which makes it an excellent investment as either a holiday home or a superb family home.
Porch
Enter through hard wood front door with glass pane. Tiled floor. Door to inner hall.
Hall
Doors to various rooms. Stairs to first floor. Solid wood floor. Open to kitchen/dining room.
Kitchen/Dining Room - 5.99m x 4.04m (19'7" x 13'3")
Open plan layout. Hard wood floor. Ample space for dining table. Sliding glazed doors to rear leading to the decked sating area. Door to a clever space saving under-stairs cupboard housing the washing machine, tumble dryer and Grant oil fired combi boiler.
Kitchen
The kitchen area has fitted base and wall units with matching worktop. Window to front with countryside views. Stainless steel 1.5 bowl sink with drainer and mixer tap. Integral electric hob and oven with extractor over. Integral fridge freezer. Space and connection for dishwasher.
Bedroom 1 - 3.76m x 2.97m (12'4" x 9'8")
Twin Bedroom with window to the front.
Bedroom 2 - 4.93m x 2.92m (16'2" x 9'6")
Double bedroom with window to the rear. Door to en-suite.
Ensuite
Frosted window to rear. Mains waterfall shower in large glazed enclosure WC. Pedestal wash hand basin. Fully tiled walls and floor. Heated towel rail. Extractor. Frosted pane window to rear. Shaving point and light.
Cloakroom - 2.06m x 1.14m (6'9" x 3'8")
WC. Pedestal wash hand basin. Fully tiled walls. Window to front. Extractor. Laminate flooring.
First Floor Landing
Vaulted ceiling. Doors to all rooms. Loft hatch. Window to rear.
Lounge - 6.02m x 4.93m (19'9" x 16'2")
Two windows to rear. Two sets of French doors opening onto Juliet balconies with superb views over Pleasant Valley and the woodland beyond. Multi fuel burner. Vaulted ceiling with exposed beams. Hard wood floor.
Master Bedroom - 6.02m x 2.82m (19'9" x 9'3")
Window to front and one to rear. Vaulted ceiling with exposed beams.
Shower Room
Fitted with suite comprising mains connected waterfall shower, WC and pedestal wash hand basin. Fully tiled walls. Door to airing cupboard. Frosted pane window to front. Vanity unit. Heated towel rail. Extractor.
EXTERNALLY
To the front is a paved driveway with parking for several cars. The enclosed terraced rear garden, which can be accessed from both sides of the property, has a fantastic composite deck with a glass canopy with infra-red heating allowing an amazing space for al fresco dining and socialising. Steps lead up to the upper levels where you will find a summer house, garden shed and a manicured lawn, all offering views over the valley and woodland beyond.
Property Information
We are advised the property is Freehold.
Mains power connected. Oil fired central heating. Private drainage.
Directions
From our office travel north towards Kilgetty. At the first roundabout with the A477 turn right and head towards Carmarthen on the By-Pass. After approximately half a mile take the right turn signposted Stepaside. Go into the village, over the bridge, then take the next left turn signposted Pleasant Valley and then the next left again. Continue on this road and the property will be found on the left hand side after about half a mile.



























