Stepaside, Narberth, SA67
Info
- Stunning Detached House
- 4 Double Bedrooms, Master En Suite, Bathroom & Cloakroom
- 8.9m Lounge/Dining Room With Feature Inset Fireplace
- Ample Driveway parking Plus Detached Single Garage
- Sunny Low Maintenance Gardens
- Walking Distance To The Beach At Wiseman's Bridge
- Within Easy Reach Of Local Amenities
- A Superb Family Residence - Viewing is Highly Recommended
- Oil Central Heating & uPVC Double Glazing
- EER - TBC
The Property
THE PROPERTY
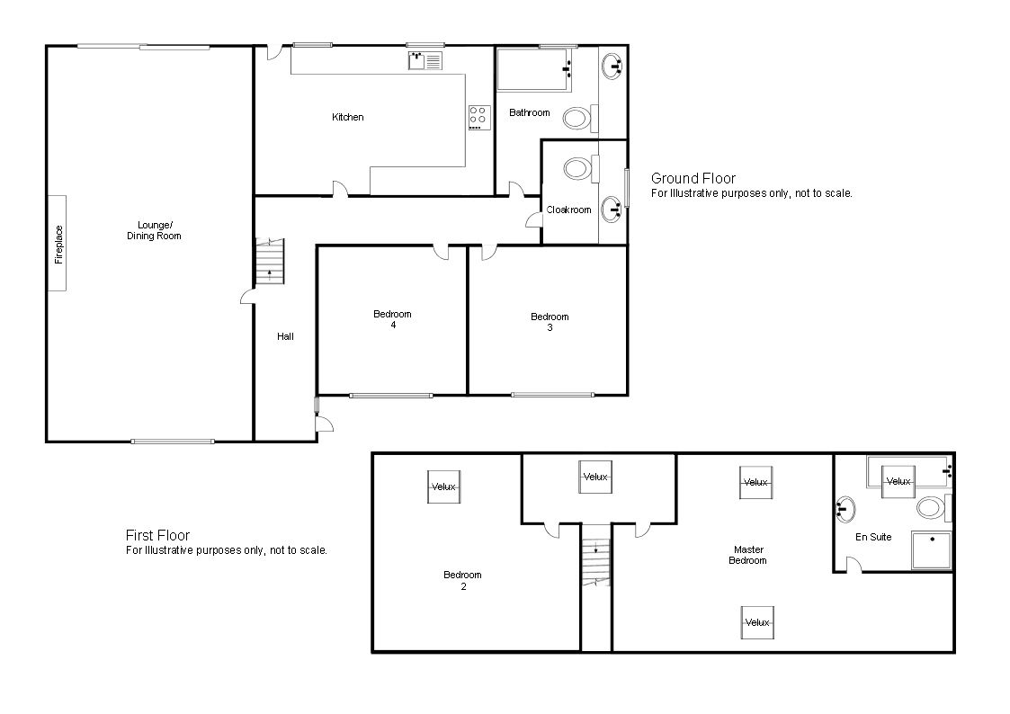
This beautiful detached house is located in the peaceful and pretty residential area of Pleasant Valley and offers spacious and stylish accommodation over two floors, comprising Hall, open plan Lounge/Dining Room, Kitchen/Breakfast Room, Two Double Bedrooms, Bathroom and separate WC/Cloakroom on the Ground Floor, and Two further Double Bedrooms on the First Floor, the Master having En Suite facilities. Externally it has a generous low maintenance rear garden with sunny aspects and decorative floral beds, perfect for barbeques and outside dining, with the added benefit of a very good size garage at the side and large block paved driveway at the front which provides ample parking for multiple vehicles. This property has many desirable attributes and viewing is highly recommended. It is also close to the resort towns of Tenby and Saundersfoot, which are equally located. Pleasant Valley is only about half a mile from the beach at Wiseman's Bridge and about two miles from Kilgetty where there are amenities such as a supermarket, train station, doctors surgery and primary school.
Hallway
Enter via glazed uPVC door with sidelite into L shape Hallway. Doors to all rooms. Stairs to First Floor. Tiled floor.
Lounge/Dining Room - 8.9m x 3.9m (29'2" x 12'9")
Window to front and sliding glazed doors to the rear leading the the garden and patio. Log burning stove in large recessed fireplace with stunning slate hearth and rustic oak mantel. Ample space for large family sized lounge and dining suites. LVT flooring.
Kitchen/Breakfast Room - 5.5m x 2.7m (18'0" x 8'10")
Two windows and glazed uPVC door to rear. Fitted with a range of wall and base units with matching worktop. Integral appliances comprising eye level electric oven and grill and four ring electric hob with extractor over. Space and connection for washing machine and upright fridge freezer. Worcester oil fired combi boiler. Inset composite sink and drainer with mixer tap over. Ample space for dining suite. Part tiled walls. Tiled floor.
Bedroom 3 - 3.1m x 2.8m (10'2" x 9'2")
Window to front. Good sized Double Bedroom.
Bedroom 4 - 2.9m x 2.8m (9'6" x 9'2")
Window to front. Good sized Double Bedroom.
Bathroom
Window to rear. Fitted with matching modern suite comprising corner bath with mains shower over, and WC and wash hand basin in vanity unit with mirror above. Part tiled walls. Tiled floor. Extractor.
Cloakroom
Window to side. Fitted with matching modern suite comprising WC and wash hand basin in vanity unit. Part tiled walls. Tiled floor.
First Floor Landing
Large Velux to rear. Doors to Master Bedroom and Bedroom 2.
Master Bedroom - 7.1m x 4.6m (23'3" x 15'1")
An impressively spacious Double Bedroom with Large Velux windows to front and rear. Door to En Suite Bathroom. Hatch to eaves spaces.
Master En Suite Bathroom
Velux to rear. Fitted with matching modern suite comprising WC, pedestal wash hand basin, panel bath and electric shower in separate glazed enclosure. Part tiled walls. Extractor.
Bedroom 2 - 4.6m x 4m (15'1" x 13'1")
Large Velux to rear. A generous Double Bedroom.
Externally
The property is approached over a large block paved driveway which provides ample parking for multiple vehicles, with room to park a motorhome or small boat. Additional parking is provided in the detached single garage. A raised timber deck at the front of the house provides a lovely spot to sit out in the morning sun with coffer and newspapers. A paved path leads through gated access at both sides of the house to the sizeable low maintenance garden, which features a paved patio and a shingled area adorned with well stocked flower beds.
Garage - 6.8m x 3.5m (22'3" x 11'5")
Up and over door to front. pedestrian door to rear. Power and drainage connected. Insert stainless steels sink and drainer. WC. Space and connection for tumble dryer.
Property Information
We are advised the property is Freehold.
Mains power connected.
Oil central heating.
Private drainage with a septic tank under the drive.
Council tax band F
The property also benefits from a hardwired intruder alarm.
Directions
From Tenby proceed north on the A478. Continue for approximately 5 miles until you reach the roundabout with the A477. Turn right towards St Clears. After about half a mile turn right at the junction to Stepaside. Follow this road for about a quarter of a mile and turn left at the Cromwell Court flats. Follow the road down and take the first turning left, continue on this road and you will pass the Chapel on your left, carry on past Gorse Star caravan park, and the property will be found on the left hand side, directly after a left hand turn into a private road.



















