Sandy Hill Park, Saundersfoot, SA69
Info
- Fantastic Semi-Detached House On Good Sized Corner Plot
- 4 Double Bedrooms, 1 En Suite Wet Room & Family Bathroom
- Beautifully Presented Throughout -Ready To Move Into
- Off Road Parking For 2 Cars
- Enclosed Rear Garden, Patio & Hot Tub With Insulated Surround
- Within Easy Reach Of Schools, Amenities & Beaches
- Superb Family Home Or Proven Holiday Let Property
- Vacant Possession With No Upward Chain
- EER - TBC
Property Summary
The Property
THE PROPERTY
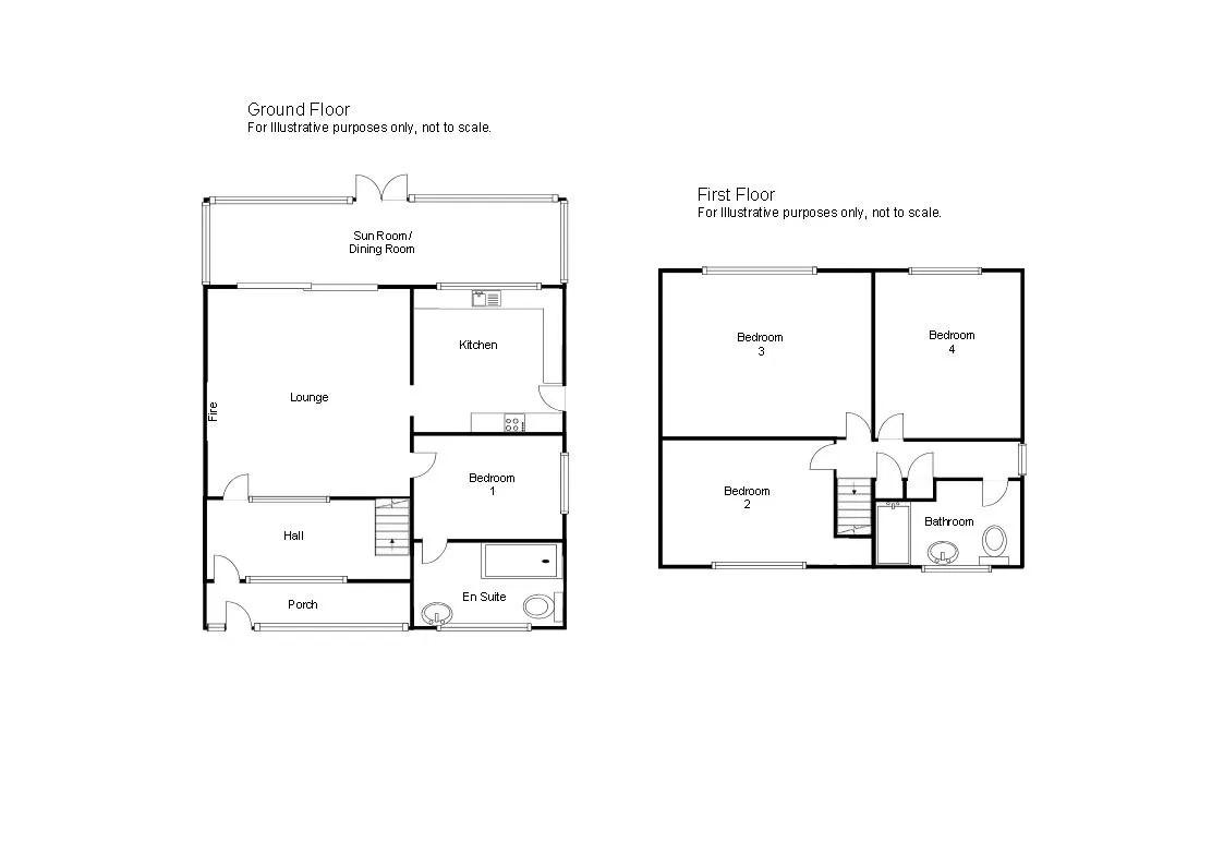
Ty Gwyn is a beautifully presented semi-detached house located in a peaceful cul-de-sac in the popular residential location of Sandy Hill Park in Saundersfoot. The bright and well appointed accommodation sits in a good sized corner plot and comprises Porch, Hall, Lounge, Kitchen, Sun Room/Dining Room, and One Bedroom with En Suite Wet Room on the Ground Floor, and Three Double Bedrooms and Family Bathroom on the First Floor. The property benefits from gas central heating and uPVC double glazing throughout. To the front there is a drive way allowing off road parking for two cars. A side gate allows access to the rear, where there is a large enclosed lawned area and a sunny paved patio. The centre of Saundersfoot with its lovely beaches, working harbour, shops, cafes and amenities is a short distance away. An ideal family home or investment, the property has also let out successfully as a holiday let
Porch
Enter through a glazed uPVC door with window to side into the Porch. Tiled floor. Space and connection for washing machine. Frosted window and hardwood door to Hall.
Hall
Stairs to First Floor. Glazed door and frosted internal window to the Lounge. Built in closet. Laminate flooring.
Lounge - 6.1m x 3.2m (20'0" x 10'5")
Sliding glazed doors to Sun Room/Dining Room. Doorway to Kitchen. Door to Bedroom 1. Laminate flooring. Boarded fireplace with slate hearth.
Kitchen - 3.5m x 2.6m (11'5" x 8'6")
uPVC door to side. Internal window to the Sun Room/Dining Room. Fitted with a range of wall and base units with matching worktop. Integral 4 ring electric hob and oven with extractor over. Space and connection for upright fridge freezer and dishwasher. Inset 1.5 stainless steel sink and drainer and mixer tap over. Tiled floor.
Sun Room/Dining Room
Frosted windows to both sides. Windows to rear with French doors leading to the garden. Ample space for family sized dining suite. Vinyl flooring.
Bedroom 1 - 2.6m x 2.4m (8'6" x 7'10")
Window to side. Door to En Suite Wet Room. Vinyl flooring.
En Suite Wet Room
Frosted window to front. Fitted with matching modern suite comprising WC and wash hand basin in vanity unit with illuminated mirror above. Electric shower in step free enclosure with screen. Fully tiled walls and floor.
First Floor Landing
Window to side. Doors to all room. Door to airing cupboard and large closet housing wall mounted Main Eco Elite gas combi boiler. Loft hatch.
Bedroom 2 - 4.2m x 3.2m (13'9" x 10'5") max
Window to front.
Bedroom 3 - 3.3m x 3.2m (10'9" x 10'5")
Window to rear.
Bedroom 4 - 3.5m x 2.5m (11'5" x 8'2")
Window to rear.
Bathroom
Frosted window to front. Fitted with matching contemporary suite comprising WC, pedestal wash hand basin and P shape bath with mains shower over. Fully tiled walls. Vinyl flooring.
Externally
To the front there is a driveway offering off road parking for two cars. To the rear there is a large lawned area with hedge and fence boundaries and a paved patio; the perfect spot for al fresco dining and relaxing.
Property Information
We are advised the property is Freehold, with all mains services connected.
Council Tax Band D.
Directions
From our office, travel North to the roundabout at New Hedges and proceed straight across, taking the first right turn into Sandy Hill Road. Continue for a short distance turning right into Sandy Hill Park. Turn right again and the property will be found in the right hand corner.
















