Park Place, Tenby, SA70
Info
- Three Storey Mid Terraced House
- 3 Bedrooms, 2 Bathrooms & Loft Room
- Immaculate Throughout With Charming Period Features
- Patio & Garden To Rear
- Sought After Location
- Easy Walking Distance To Town & Beaches
- Gas C/Heating & D/Glazing
- Ideal Family Home Or Investment Property
- EER - TBA
Property Summary
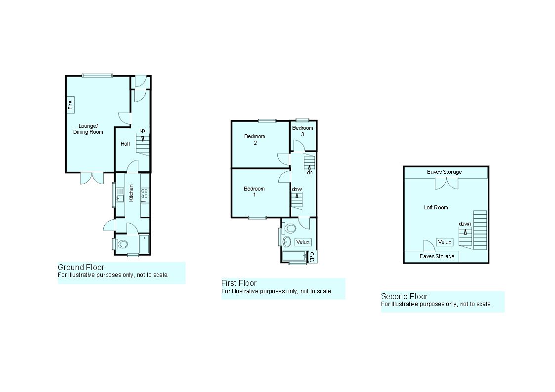
The Property
The Property
Blackbear x Chandler Rogers are delighted to showcase this immaculately presented elevated mid terrace house is perfectly located to reach the town centre, amenities and popular beaches. The property benefits from charming original period features, gas central heating and uPVC double glazing, with spacious and stylish accommodation arranged over three floors comprising Porch, Inner Hall, Lounge/Dining Room, Kitchen and Shower Room on the ground floor; and Family Bathroom and Three Bedrooms on the first floor. In addition, there is a beautifully converted Loft Room on the second floor which is currently used as a fourth bedroom. At the rear is an attractive enclosed tiered garden with steps leading up from a paved patio to a sunny seating area with decorative planting, pebble beds, a lawn and a deck; the perfect place to relax and socialise. Viewing is essential to fully appreciate what the property has to offer. An ideal family home or investment opportunity.
Hall
Enter through timber door with glazed pane above into Porch. Original floor tiles. Timber door with stained glass panes into Hall.
Lounge/Dining Room - 6.88m x 4.34m (22'7" x 14'3")
Sash window to front and French doors to rear giving access to patio and elevated garden. Original fireplace with polished stone hearth and mantle and cast iron surround with ornate tiling. Alcoves either side of the chimney breast with built in cupboards.
Kitchen - 4.17m x 2.46m (13'8" x 8'0")
Window and glazed door to side giving access to patio and rear garden. Fitted with a range of wall and base units with matching granite worktop extending to splash back and window sill. Integral four ring gas hob and electric oven with extractor over. Integral fridge, freezer, washing machine and dishwasher. Belfast sink with mixer tap over. Ceramic floor tiles. Door to Shower Room.
Shower Room
Frosted window to side and high level window to rear. Mains shower in glazed enclosure. WC. Fully tiled walls and floor.
First Floor Landing
Doors to all rooms. Stairs to Second Floor with cupboard underneath.
Bathroom - 2.64m x 2.29m (8'8" x 7'6")
Two steps up from half landing. Frosted window to rear and side and Velux to side. Fitted with matching suite comprising WC and pedestal wash hand basin. Bath with waterfall shower over. Heated towel rail. Fully tiled walls and floor. Cupboard housing wall mounted Vaillant gas combi boiler.
Bedroom One - 3.35m x 3.15m (10'11" x 10'4")
Sash window to rear. Stripped and stained solid timber floorboards.
Bedroom Two - 3.68m x 3.07m (12'0" x 10'0")
Sash window to front.
Bedroom Three - 2.67m x 2.26m (8'9" x 7'4")
Sash window to front.
Loft Room - 6.91m x 4.01m (22'8" x 13'1")
Velux to rear. Doors to each side giving access to eaves storage. Currently used as a fourth bedroom,
Externally
The property is approached from the front over an enclosed courtyard with stone wall boundaries and painted iron railings, with established trees and shrubs and pebble beds. To the rear is a sunny paved patio accessed from the Lounge or Kitchen. Steps lead up to a further patio which provides a lovely spot for al fresco dining and relaxing. On the top level is a neat lawn with a timber deck.
Directions
From our office proceed through the Five Arches and turn right. At the junction cross over and take the right fork down past the Memorial Gardens into Park Road. Follow the road past the multi storey car park then take the first left turn into Edward Street. Take the first right turn into Park Place and Thornton will be found after a short distance on the left.
















