Oakhill Drive, Saundersfoot, SA69
Info
- 3 Bed Detached House
- Sunny Rear Garden
- Quiet Cul-De-Sac
- Walking Distance To Beach
- Off Road Parking
- Well Presented, Fully Furnished
- Ideal Holiday Let
- E E R - TBC
Property Summary
The Property
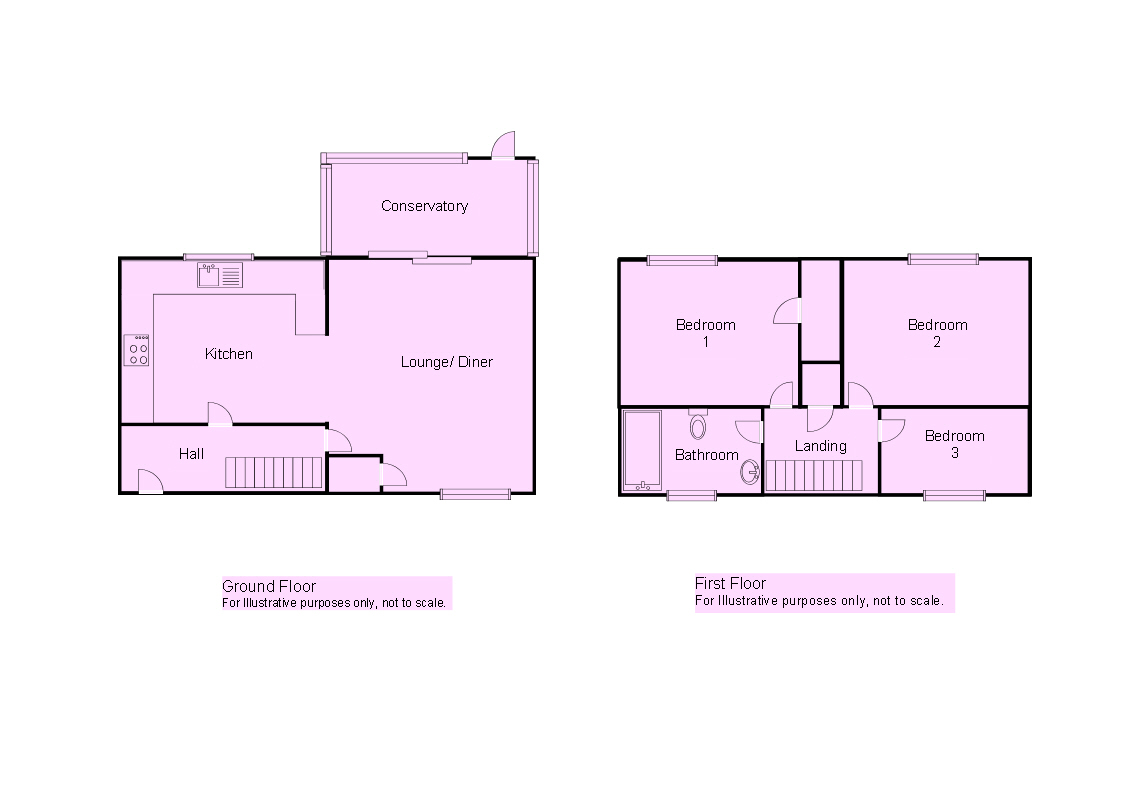
THE PROPERTY A well maintained detached house situated in a quiet cul-de-sac location in Saundersfoot. The property benefits from double glazing throughout and gas central heating with accommodation comprising Open Plan Kitchen/Lounge/Diner, Conservatory, Bathroom and Three Bedrooms. Potential for holiday let income as property has been a holiday let business and has seven years of proven booking history. Sold fully furnished. The low maintenance front is laid to gravel with one off road parking space. A side gate gives access to the rear pretty, sunny garden with patio areas, raised beds with mature shrubs, a water feature and small pond. There is a patio area to enjoy the evening sun. The beaches, working harbour and amenities in Saundersfoot are all within a short distance.
ENTRANCE HALL Part glazed door and window into hallway. Laminate flooring. Stairs to first floor. Door Open Plan Kitchen/Lounge/Diner.
OPEN PLAN KITCHEN/ LOUNGE/DINER
LOUNGE/ DINER AREA 16' 2" x 14' 3" (4.93m x 4.34m) Window to front. Door to under stairs storage. Sliding patio doors to conservatory.
DINING AREA Space for family sized dining room table and chairs.
KITCHEN AREA 9' 9" x 8' 11" (2.97m x 2.72m) Tiled floor and part tiled walls. Fitted wall and base units with matching worktop and tiled splashback. Integral electric cooker with gas hob and extractor over. Inset sink with drainer and mixer tap. Space and plumbing for washing machine and dishwasher. Space for fridge freezer. Window to rear.
REVERSE VIEW
CONSERVATORY 9' 8" x 7' 4" (2.95m x 2.24m) Brand new double glazed with French doors opening onto garden.
FIRST FLOOR Landing with window to front. Access to loft which is part boarded. Door to Airing cupboard.
BEDROOM 1 9' 10" x 9' 8" (3m x 2.95m) Window overlooking the rear garden. Walk-in wardrobe and cupboard with shelving.
BEDROOM 2 10' 3" x 8' 8" (3.12m x 2.64m) Window to rear. Built-in wardrobe with cupboard above.
BEDROOM 3 7' 4" x 6' 3" (2.24m x 1.91m) Window to front.
BATHROOM Fitted with pedestal wash hand basin, WC, 'P' shape bath with shower over and glass screen. Waterproof wall panels and vinyl flooring. Extractor fan. Frosted window to front. Less than one year old.
EXTERNALLY To the front is a low maintenance garden laid to gravel. A side gate gives access to the rear pretty, sunny garden with patio areas, raised beds with mature shrubs, a water feature and small pond. There is also a patio area to enjoy the evening sun. There is off road parking.
REVERSE VIEW
REAR GARDEN
DIRECTIONS From Tenby travel north to the roundabout at New Hedges. Proceed straight across taking the first right turn into Sandyhill Road. Carry on for approximately half a mile then take the first right turn into BevelinHall/Sandy Hill Park. Continue straight ahead and upon entering Oakhill Drive No 5 will be found at the end of the cul-de-sac on the left hand side.



















