Moreton, Saundersfoot, SA69
Info
- Amazing Detached Residence with Three Spacious Properties On One Title
- Approx 2,777 sq.m Of Luxurious Living Space, Beautifully Presented Throughout To An Incredibly High Standard
- Ideal For Those Seeking Multi-Generational Accommodation, Or To Operate A Lucrative Holiday Letting Business
- Abundant Off Road Parking For Dozens Of Vehicles On A Huge Driveway, Plus Twin Double Garages
- Generous Gardens Set Over An Acre, With Private Outside Areas For Each Property
- Ideally Located To Reach The Popular Resorts Of Tenby & Saundersfoot
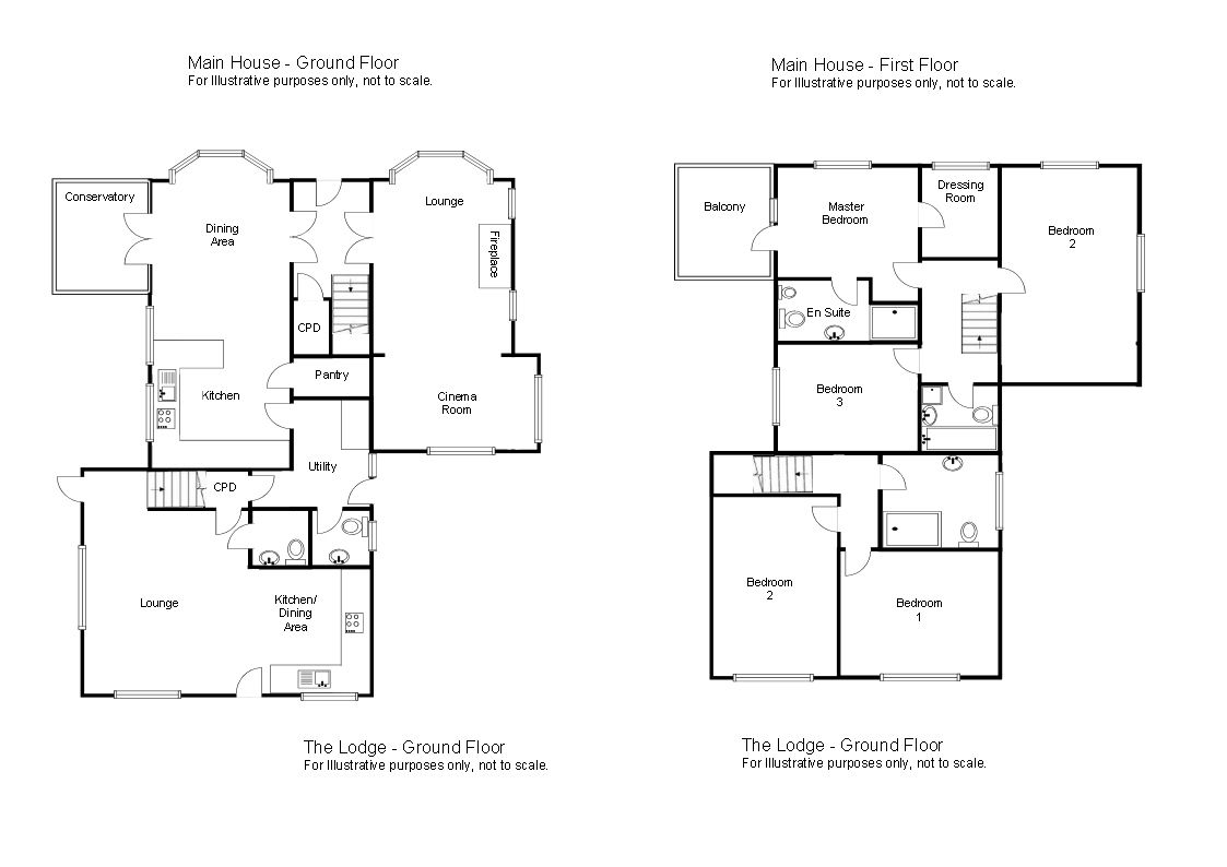
The Property
Blackbear property are delighted to present Fair Acre, an excellent opportunity to purchase a spacious family residence with two self contained Cottages in the delightful hamlet of Moreton. This exceptional home has been completely renovated throughout by the current owners , offering an impressive 2,777sq. ft (approx.) of living space, an acre of very generous landscaped gardens offering a choice of seating areas, and ample off-road parking for dozens of vehicles provided in detached twin double garages and a huge driveway. Ideal for seasoned investors looking to expand their portfolio with high-yielding assets; the property also offers endless versatility; it is immensely suitable for families looking for a multi-generational home, and equally suited for holiday letting apartments, or to long let to provide a lucrative income.
Fair Acre is ideally located to reach the popular resorts of Tenby and Saundersfoot with their lovely sandy beaches, working harbours, shops, restaurants, etc are just a short distance away, with Saundersfoot reachable on foot via the bridleway.
Porch
Enter from the front through a glazed composite door into Porch. Door to Hall.
Hall
Glazed double doors to Kitchen/Dining Room and Lounge. Stairs to First Floor with large closet under.
Lounge - 4.71m x 3.57m (15'5" x 11'8")
Bay window to front. Two window to side. Opening to Cinema Room. Log burner with slate hearth.
Cinema Room
Double aspect with windows to side and rear.
Kitchen/Dining Room - 10.94m x 3.6m (35'10" x 11'9")
An amazing contemporary open plan space. Bay window to the front. Window and glazed French doors to the side leading to the Conservatory. Doors to Utility Room and large Pantry.
Dining Area
Ample space for family sized dining suite.
Conservatory - 4.2m x 3.9m (13'9" x 12'9")
Currently under construction. Dwarf wall structure.
Kitchen
Fitted with a range of modern country style wall and base units with matching worktop extending to breakfast bar with space for two seats. Quality integral appliances comprising five ring LPG hob with extractor over, eye level electric double oven and grill, microwave, fridge, freezer and dishwasher. Space and connection for wine cooler. Inset composite sink and drainer with mixer tap over. Door to large pantry with integral shelving. Part tiled walls.
Utility Room
Window and glazed uPVC door to the side. Space and connection for white goods. Pressurised hot water system. Door to Cloakroom. Door to storage cupboard which connects the main house to The Lodge. Tiled floor.
Cloakroom
Window to side. Fitted with matching modern suite comprising WC and wash hand basin in vanity unit. Extractor. Part tiled walls. Tiled floor.
First Floor Landing
Split level Landing. Doors to various rooms.
Master Bedroom - 5.07m x 3.29m (16'7" x 10'9")
Window and glazed door to side leading to glass fronted Balcony. Doors to En Suite and Dressing Room.
Balcony - 4.2m x 3.9m (13'9" x 12'9")
The Master Bedroom features an amazing glass fronted balcony with space and connection for a hot tub, which is available to purchase via separate negotiation.
En Suite Shower Room
Velux to the side. Fitted with matching contemporary suite comprising WC, bidet, wash hand basin in vanity unit with illuminated mirror above, and mains experience shower in large glazed walk in enclosure. Fully tiled walls. Extractor.
Dressing Room - 3.14m x 1.77m (10'3" x 5'9")
Window to front. Integral shelving and hanging rails.
Bedroom 2 - 5.74m x 3.56m (18'9" x 11'8")
Double aspect with windows to front and side.
Bedroom 3 - 3.41m x 2.9m (11'2" x 9'6")
Window to side.
Bathroom
Window to side. Fitted with matching contemporary suite comprising WC, wash hand basin in vanity unit with illuminated mirror above, mains shower in glazed enclosure and double ended bathtub. Part tiled walls. Extractor.
Externally
Fair Acre occupies generous grounds of around an acre. The property is approached through electric double gates over a huge tarmac driveway which leads to the Main House, Cottages, and Twin Double Garages, and provides off road parking for dozens of vehicles at the rear, side and front. The sizeable gardens feature well kept lawns, mature trees and shrubs, a separate paved sandstone patio for each property, and a large gravelled area at the rear which provides additional parking for boats and caravans.
Double Garage - 9.1m x 6.6m (29'10" x 21'7")
Ample off road parking is provided in the detached twin Double Garages. The current owner utilises this fantastic space as a workshop. Both Garages have electric up and over doors to the front, a window to each side and an internal window. Both also have pedestrian doors to an Inner hallway, where steps lead up to the Upper Level, where there is a Games Room/Den on one side, and facilities in situ to easily convert the remaining room to another self contained Annex, subject to the necessary permissions. Both rooms on the Upper Level have two large Velux windows to the front.
THE LODGE
An adjoining Two Bedroom One Bathroom Cottage.
Porch
Enter through uPVC door into Porch. Window to side. Door to Lounge/Kitchen/Diner.
Lounge/Kitchen/Diner - 7.82m x 4.81m (25'7" x 15'9")
A bright and spacious open plan living space. Two window to the rear. Window and glazed uPVC door to the side leading to private outside seating area. Door to Cloakroom. Door to two storage cupboards, one providing connected access to the main house. Stairs to First Floor.
Kitchen/Diner
Fitted with a range of wall and base units with matching worktop. Quality integral appliances comprising four ring LPG hob and electric oven with extractor over, fridge, freezer, and dishwasher. Space and connection for washing machine. Inset stainless steel sink and drainer with mixer tap over. Cupboard housing wall mounted LPG boiler. Part tiled walls.
Lounge
Ample space for lounge suite.
Cloakroom
Fitted with matching suite comprising WC and wash hand basin in vanity unit. Part tiled walls. Extractor.
First Floor Landing
Doors to all rooms.
Bedroom 1 - 3.17m x 2.7m (10'4" x 8'10")
Window to rear.
Bedroom 2 - 4.77m x 2.63m (15'7" x 8'7")
Window to rear.
Shower Room
Window to side. Fitted with matching modern suite comprising WC, wash hand basin in vanity unit and mains shower in walk in glazed enclosure.
Externally
The Lodge enjoys it's own private enclosed patio which enjoys tranquil countryside views, accessed from the living area, with ample parking for guests cars and boats adjacent to the Cottage at the rear.
THE COTTAGE
A detached Two Bedroom One Bathroom Cottage.
Porch
Enter via a uPVC door. Door to Kitchen. Vinyl flooring.
Kitchen - 3.58m x 3.6m (11'8" x 11'9")
Windows to the rear and to the side. Integral fridge, freezer, 4-rimg LPG hob, electric oven, dishwasher. Space and connection for a washing machine. Stainless steel sink and drainer. Partly tiled walls. Door to Hallway. Wall mounted Worcester LPG boiler. Vinyl flooring.
Hallway
Doors to all rooms and storage cupboard. Glazed uPVC door to the patio. Laminate flooring.
Lounge - 4.77m x 3.63m (15'7" x 11'10")
Windows to the front and rear. Log burner with slate hearth. Laminate flooring.
Bathroom
Frosted window to the side. WC, wash hand basin within vanity unit and illuminated mirror above. Mains waterfall shower and separate bath. Heated towel rail. Extractor. Fully tiled walls. Vinyl flooring.
Bedroom 1 - 3.64m x 3m (11'11" x 9'10")
Window to the side. Laminate flooring.
Bedroom 2 - 2.62m x 2.42m (8'7" x 7'11")
Window to the side. Laminate flooring.
Externally
The Cottage also enjoys it's own private enclosed patio which enjoys tranquil countryside views, accessed from the living area, with ample parking for guests cars and boats adjacent to the Cottage at the rear.
Property Information
We are advised the property is Freehold.
LPG central heating, each property has it's own separate boiler and supply.
Private drainage.
The Main House & The Lodge are Council Tax Band E. The Cottage is under a separate Council Tax Band, Band C, but currently qualifies for small business rates relief.
Directions
From Tenby travel north on the A478, after about 3 miles you will enter the hamlet of Moreton. On reaching the Chapel on the left, take the left hand turn into the private drive directly after Moreton Close.























































