Mayfield Drive, Tenby, SA70
Info
- Beautiful Mid Terraced House Retaining Many Charming Period Features
- Three Bedrooms, One Bathroom
- A Blend of Classic & Contemporary Design
- Sought After Location Within Easy Walking Distance Of Town, Beaches & Schools Of All Levels
- Off Road Parking For Two Cars
- Low Maintenance Gardens
- A Wonderful Family Home Or Investment - Ready To Move Into
- No Upward Chain
- EER - D
Property Summary
The Property
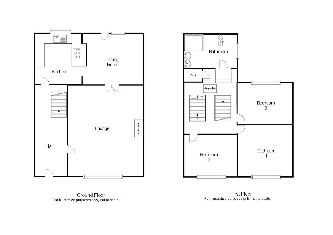
THE PROPERTY
Blackbear x Chandler Rogers are delighted to present this beautifully presented mid terraced house conveniently located for access to Tenby's beaches, wide range of shops, restaurants, pubs and amenities. The naturally well lit accommodation is spacious and well appointed, and comprises Entrance Porch, Hall, Lounge and Kitchen/Dining Room on the Ground Floor; and Three Bedrooms and a Family Bathroom on the First Floor. The house retains some wonderful character features including ornate coving, bespoke doors and original staircase, with a blend of contemporary chic design. The property benefits from hardstanding, opposite the front of the house, which provides off road parking for two cars. The front courtyard is enclosed by a low wall with gated access and the terraced rear garden is mainly laid to lawn with patio, mature shrubs and trees. This would make a lovely family home or investment.
Entrance Hallway
Enter via feature uPVC exterior door with striking stained glass pane and fanlight above into Hallway. Chinese oak flooring. Doors to Lounge and Kitchen/Dining Room. Staircase to First Floor with cupboard under.
Lounge - 7.35m x 3.68m (24'1" x 12'0")
Window to front. Ornate feature working fireplace with wooden mantel and marble surround and granite hearth. Decorative coving and ornate ceiling rose. Antique built in cupboard. Freanch doors to Kitchen/Breakfast Room.
Kitchen/Dining Room - 5.77m x 5.34m (18'11" x 17'6")
Window to rear. Door to rear. Stunning contemporary family space with exposed brickwork and a pitched glass roof over the dining area allowing lots of natural light. The Kitchen is fitted with a range of base and wall units with matching worktop. One and a half bowl sink with drainer and mixer tap. Integral four ring gas hob and oven. Space and connnection for fridge, freezer, dishwasher and washing machine. Part tiled walls. Chinese oak flooring in the Dining Area and tiled floor in the Kitchen.
First Floor Landing
A split landing with a large skylight window providing plenty of natural light. Loft access. Cupboard housing wall mounted Logic gas combi boiler installed in 2019.
Bedroom 1 - 3.96m x 3.35m (12'11" x 10'11")
Window to front.
Bedroom 2 - 3.51m x 3.39m (11'6" x 11'1")
Window to rear.
Bedroom 3 - 2.88m x 2.33m (9'5" x 7'7")
Window to front
Family Bathroom
Window to front. Large luxurious Bathroom furnioshed with matching suite comprising WC, bidet, double hand wash basins in vanity unit, and a large corner bath with mixer tap and mains shower over. Part tiled walls. Vinyl flooring.
Externally
The property benefits from hardstanding opposite the front of the house which provides off road parking for two cars. The front garden is enclosed by a low wall with gated access and the low maintenace terraced rear garden has a timber deck, a paved patio, and a shingled area with mature shrubs and trees. The peaceful garden is a private oasis, the perfect spot for relaxing in the hot tub (which is available to purchase via separate negotiation) and for al fresco dining.
Property Information
We are advised the property is Freehold, with all mains services connected.
Council Tax Band F.
Directions
From our office proceed to the top of Upper Frog Street. Turn right then left and continue on The Norton up into Narberth Road. After a short distance take the right turn AFTER Gas Lane, then turn immediate left. Continue on this road and No 2 will be found on the right hand side.






















