Manorbier, Tudor Lodge, SA70
Info
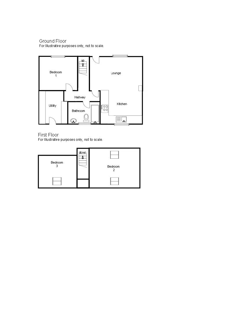
- CHARMING 3 BEDROOM SEMI DETACHED COTTAGE
- OPEN PLAN KITCHEN/LOUGNGE/DINER, UTILITY, 3 DOUBLE BEDROOMS, BATHROOM & WC
- STUNNING GARDENS AND RURAL VIEWS
- VERY WELL PRESENTED THOUGHOUGHT
- POPULAR VILLAGE LOCATION CLOSE TO BEACHES & COASTAL PATHS
- NO ONWARD MCHAIN
- PRIVATE PARKING
- EER-TBC
Property Summary
The Property
THE PROPERTY
Blackbear are extremely proud to present this CHARMING SEMI DETACHED COTTAGE in the sought after location of Jameston. Briefly comprising of an open plan kitchen, dining/lounge area, utility room and family bathroom on the ground floor and 2 bedrooms and a WC on the first floor. This quaint property is ideally suited as a comfortable family home, a relaxing option for those wishing to downsize, or a lovely holiday cottage. Boasting a large front garden mainly laid to lawn, a brick paved path leading to a seating area with woodstore. A path to the rear of the property offering an additional seating area enjoying beautiful rural views.
Jameston is a popular village housing 2 village pubs and a regular bus service. Manorbier is just a short drive away providing access to beautiful sandy beaches, coastal paths, historical castle and 12th Century Church. The popular tourist destinations of Tenby and Saundersfoot are less than 10 miles away, with a range of family activities.
STORM PORCH
Hardwood door leading to Kitchen, lounge and dining area.
LOUNGE/KITCHEN/DINER - 5.9m x 6.7m (19'4" x 21'11")
Bright, airy and spacious lounge space with window to the front, access to first floor stairs, log burner, laminate flooring in the lounge area & door to inner hall.
The kitchen area offers lovely country style wall and base units with matching worktops, window overlooking rural views to the rear, stainless steel sink and drainer with mixer tap, integral electric oven and hob with extractor fan over, Space for under counter fridge, dish washer, partly tiled walls and tiled floors, space for dining table.
HALL
Doors to all rooms
BEDROOM 1 - 3.1m x 3.6m (10'2" x 11'9")
Good sized double bedroom with window to the front of the property.
BATHROOM
Nicely finished bathroom suite comprising of a frosted window to the rear, P shape bath with shower over, WC, wash hand basin in vanity with illuminated mirror, fully tiled walls, LVT flooring, heated towel rail.
UTILITY ROOM
Good sized utility room with glazed door to the rear, base units with matching worktops, space and connection for white goods, tiled floor, wall mounted Worcester LPG boiler.
LANDING
Doors to all rooms
BEDROOM 2 - 4.7m x 4.9m (15'5" x 16'0")
Great sized double bedroom with 2 velux windows to the front and rear of the property.
BEDROOM 3 - 3.1m x 4.9m (10'2" x 16'0")
Double bedroom with velux to the rear of the property.
WC
WC and compact wash hand basin, extractor fan and vinyl flooring.
EXTERNALLY
Beautiful large lawned garden to the the fore, housing a border of shrubs and plants. A brick paved path leads to a seating area and woodstore. A path to the rear offers a further seating area with stunning rural views.
The property benefits form a parking space to the corner of the property.
PROPERTY INFORMATION
We are advised the property is Freehold.
All mains
DIRECTIONS
Leave Tenby on the Marsh Road and proceed on the by-pass towards Lydstep. Continue through Lydstep to the village of Jameston and as you enter the village, Tudor Lodge will be seen on the right.














