Lower Frog Street, Tenby, SA70
Info
- Large Terraced House with Four Bedrooms in the Heart of Tenby Town
- Open-Plan Living and Dining Room with Solid Wood Flooring Throughout
- Newly Fitted Kitchen and Family Bathroom
- Beautifully Presented Throughout
- Private Enclosed Rear Garden with Historic Town Wall
- Close to Local Attractions and Amenities
- On Street Permit Parking
- Ideal Family Home, Second Home or Holiday Let
- Amazing Central Location Close to Beaches
- EER - D
Property Summary
The Property
THE PROPERTY
Blackbear x Chandler Rogers are delighted to market this stunning 4-Bedroom home set against the historic town walls of the picturesque coastal town of Tenby.
This beautifully presented home offers a perfect blend of modern comfort and traditional charm, and is located in a much sought-after area, close to heart of the town with its boutique shops, gastropubs and award winning restaurants.
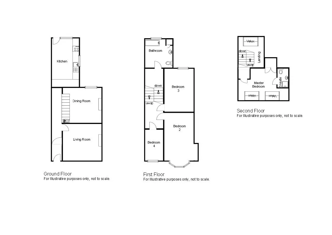
The ground floor comprises a porch and hallway, a large open-plan living/dining room and a newly fitted kitchen with engineered wooden flooring in a beautiful Herringbone style, that adds an extra touch of elegance to the space. The family bathroom, sits on the half-landing and has been recently upgraded, featuring stylish fittings and finishes for a sleek, modern feel. Three well-proportioned bedrooms are located on the first floor with wood flooring, perfect for children, guests, or a home office. The second floor containing the master bedroom is a luxurious retreat, complete with a modern en-suite shower room, and featuring sloping ceilings with exposed beams. Outside, the private enclosed rear garden borders with Tenby's Historic Town Walls offering a peaceful sanctuary against a unique backdrop, ideal for relaxing or entertaining on sunny days.
This home is ideal for those looking to enjoy both tranquil living and easy access to the pristine beaches of Tenby, its famous colourful seaside houses and the working harbour. Whether you are looking for a family home or an investment this property will certainly impress, offering a move-in ready space that combines style, convenience, and comfort for modern family living.
Don’t miss the opportunity to own this exceptional family home. Contact us today to arrange a viewing!
Porch and Hallway (1m x 1.5m & 1.6m x 5.5m)
Enter the property through the solid wood door into a charming porch providing room for hanging coats and shoes. Enter through the semi-glazed timber framed door into the hallway with engineered wood flooring. Staircase to the first floor, doors to ground floor rooms.
Open-plan Living and Dining Room
The bright and spacious open-plan living and dining room is perfect for family gatherings and entertaining guests. Large windows fill the space with natural light, creating a warm and inviting atmosphere. Engineered wood flooring.
Living Room - 3.46m x 3.6m (11'4" x 11'9")
With a sash window to the front with interior shutters, and a delightful exposed stone fireplace, with alcove cupboards either side. Engineered wood flooring continues into the lounge.
Dining Room - 2.82m x 3.38m (9'3" x 11'1")
The dining area is accessed via an open archway and features a small exposed stone inglenook fireplace. Featuring a recessed cupboard space and engineered wood flooring. Sash window to the rear with interior shutters.
Kitchen - 3.85m x 2.5m (12'7" x 8'2")
The newly fitted kitchen is a cook’s dream, offering contemporary functionality with ample storage and work surfaces, whilst retaining the cottage feel of the property with the exposed beams, ceramic tile flooring and exposed stone walls. Fitted with a range of natural oak coloured base and wall units with a white marble worktop. Integral appliances - 4-ring induction hob, eye-level double oven, wine cooler, fridge-freezer, washing machine and dishwasher. A small utility area with uPVC window and door to the rear of the property, as well as small window to the side provides an abundance of natural light into the kitchen.
Whether you’re preparing a family meal or hosting a dinner party, this kitchen will not disappoint.
Family Bathroom - 2.39m x 2.34m (7'10" x 7'8")
The newly refurbished family bathroom comprises of bath with shower over and a glass shower screen. A vanity unit with built-in sink and close coupled WC, and wall mounted mirror. Frosted window to the rear.
Bedroom 2 - 2.7m x 3.6m (8'10" x 11'9")
With a large sash window to the front with interior shutters, this lovely bright room features exposed wood flooring and recessed wardrobes either side of the chimney breast, providing ample storage.
Bedroom 3 - 2.7m x 3.4m (8'10" x 11'1")
A double bedroom with a sash window to the rear and interior shutters and recessed wardrobes either side of the chimney breast.
Bedroom 4 - 2.57m x 1.64m (8'5" x 5'4")
A further bedroom which would also serve as a quiet study or reading room. With a sash window to the front and exposed wood flooring.
Master Bedroom - 4.76m x 3.68m (15'7" x 12'0")
The converted loft serves as a spacious master bedroom, featuring exposed beams and a charming sloping ceiling that gives the room a unique character. The master also boasts a private en-suite shower room, providing the perfect retreat for relaxation and privacy. Velux windows to the front and the rear. Built-in wardrobe space.
Ensuite Shower Room
Shower cubicle with electric powered shower, vanity cupboard with wash hand basin, wall mounted cabinet and close coupled WC.
Externally
Outside, the private enclosed rear garden offers a peaceful sanctuary, ideal for relaxing or entertaining on sunny days. A unique feature of this home is that the garden wall forms part of the historic town walls of Tenby, adding both charm and a sense of history to the property.
A large outbuilding provides a useful space for storage and could be used as a workshop or sun room.
Property Information
We understand the property to be freehold with all mains utilities connected.
The property sits within council tax band E.
The property is located in Pembrokeshire Coast National Park.
Directions
From our offices, turn left and proceed towards the bottom of Lower Frog Street, No.2 Lydstep Buildings will be found on the left hand side about half way down.


















