Lady Park, Tenby, SA70
Info
- Beautiful 4 Bedroom 3 Bathroom Detached Home
- Occupying A Large Corner Plot
- Generous Sunny Back Garden & Terrace
- Lovely Sea & Country Views
- Modern Open Plan Living
- Close to Schools & Amenities
- Walking Distance To The Town Centre And Beach
- A Wonderful Family Home Or Investment Property
- Gas Central Heating & uPVC Double Glazing Plus Solar PV Panels
- EER - C
Property Summary
The Property
The Property
Blackbear x Chandler Rogers are extremely pleased to present this beautiful, bright and airy 4 bedroom detached family home located in the sought after seaside resort of Tenby. This fantastic property offers stylish open plan living, an abundance of sunny outside space, plenty of parking, stunning sea and countryside views, making it the ultimate entertaining pad for all the family! The ground floor offers a large kitchen, dining and lounge area, 1 double bedroom, large shower room, study and integral garage. 3 double bedrooms, ensuite, family bathroom occupy the first floor and lets not forget those views!
The beaches, harbour and centre of town are within walking distance, as are schools at all levels. This fabulous property would make ideal family home or holiday let, and viewing is highly recommended to appreciate it's fantastic features.
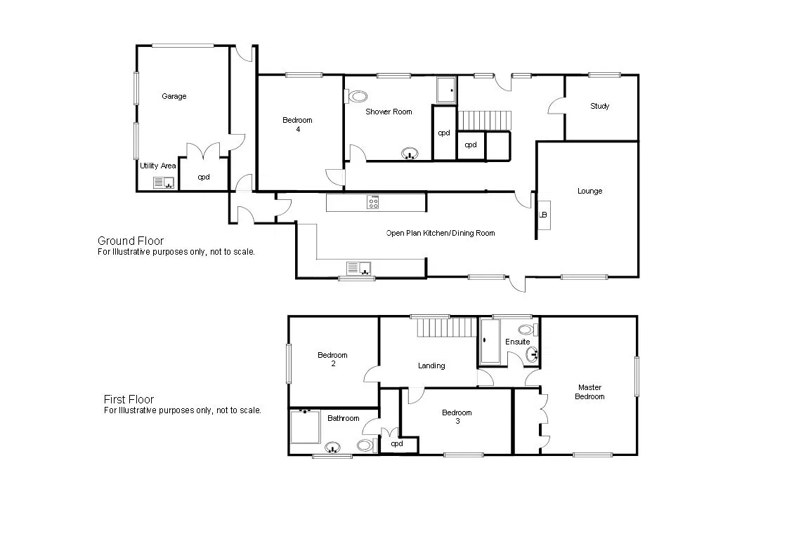
Entrance Hall
Enter through a lovely hardwood door with pretty stained glass windows to either side, laminate flooring, access to stairs, doors to study, Living area, shower room and downstairs bedroom
Kitchen/ Dining Room - 8m x 3.47m (26'2" x 11'4")
This fabulous kitchen has a large window to the rear, a range of wall and base units with matching worktop offering a large amount of storage. Belfast ceramic sink, integral oven, dishwasher, induction cooker with extractor fan above. Spot lights above, slate tiled floor, Space for large American style fridge/freezer. Door to back porch which provides access to the integral garage and back garden.
The dining area has a large window to the rear, decorative glass windows internally, room for a large dining table and access to the sunny terrace.
Lounge Area - 5.46m x 3.63m (17'10" x 11'10")
Large window to the rear overlooking the terrace, log burner.
Shower/Wet Room - 2.75m x 2.69m (9'0" x 8'9")
Frosted window to front, WC, wash hand basin with vanity unit and mains, shower cove. Fully tiled walls and floors, heated towel rail, large storage cupboard
Ground Floor Bedroom - 3.6m x 3.02m (11'9" x 9'10")
Good sized double bedroom with window to front
Study - 2.52m x 1.65m (8'3" x 5'4")
Window to front, lovely hardwood fitted corner desk
Landing
Spacious landing on the first floor, window to front, doors to 3 double bedrooms and bathroom
Master Bedroom - 4.53m x 3.02m (14'10" x 9'10")
Generous master bedroom offering so much light and fantastic views! Window to side and rear, two large storage cupboards/wardrobes, door to ensuite
Ensuite
Window to front, large walk in shower, ceiling spot lights, part tiled walls, tiled floor, heated towel rail
Bedroom 2 - 3.89m x 3.04m (12'9" x 9'11")
Good sized double bedroom with window to side
Bedroom 3 - 3.49m x 2.56m (11'5" x 8'4")
Fantastic views through the rear window to the sea and surrounding countryside
Bathroom - 3.02m x 1.63m (9'10" x 5'4")
Large window to rear, corner bath with shower connection, wash hand basin, WC, heated towel rail, fully tiled windows and floors and spotlights
Garage - 5.22m x 3.56m (17'1" x 11'8")
2 Windows to the side, Utility area and connection for washing machine & tumble dryer, large storage cupboard.
Externally
The property occupies a large corner plot. Approach through a wooden gate onto a tarmac drive, parking for 2 cars and access to the garage and front door. Further parking for 2-3 cars can be found to the side of the property. Both front and side gardens are low maintenance and laid to lawn. The plot is enclosed within a decorative stone wall.
The rear garden is spacious and sunny all day. Currently the bottom garden is low maintenance mainly laid to lawn but could be a dream for the green fingered or simply a small football pitch for the kids! Walk up the steps to find your oasis. The terrace with lovely views across the countryside and sea. Cook up a BBQ, open a bottle of bubbly and enjoy some Al Fresco dining!
Property Information
We are advised the property is Freehold, with all mains services connected.
Council Tax Band F
Directions
From our office proceed to the top of Upper Frog Street and turn left. At the junction turn right and go down the road to the mini roundabout. Turn right and continue up the hill around the right hand bend and carry on until you reach the large layby on the right hand side. Turn into the layby and drive up the hill to Lady Park and the property will be found on the right hand side.






















