Camrose, Haverfordwest, SA62
Info
- Charming detached property situated on just under 0.5 acre grounds
- 3 double bedrooms, 2 reception rooms, 2 bathrooms
- Large beautiful grounds, countryside views and a brook
- Driveway, garage & car port
- Well-presented accommodation, idyllic location
- Ideal family home / dream forever home
Property Summary
The Property
Blackbear are delighted to showcase Ash Hill, Cuttybridge to the open market, a charming detached cottage situated in an idyllic setting within the popular village of Camrose. Ash Hill is spectacularly poised on just under 0.5 of an acre grounds and boasts beautiful grounds, a brook and beautiful countryside views all around. This beautiful home perfectly combines charming country features whilst accommodating modern living with its immaculate finish and would lend itself to being the dream family / forever home with 3 double bedrooms, 2 reception rooms, kitchen, 2 bathrooms, driveway, garage and large grounds- we highly recommend viewing.
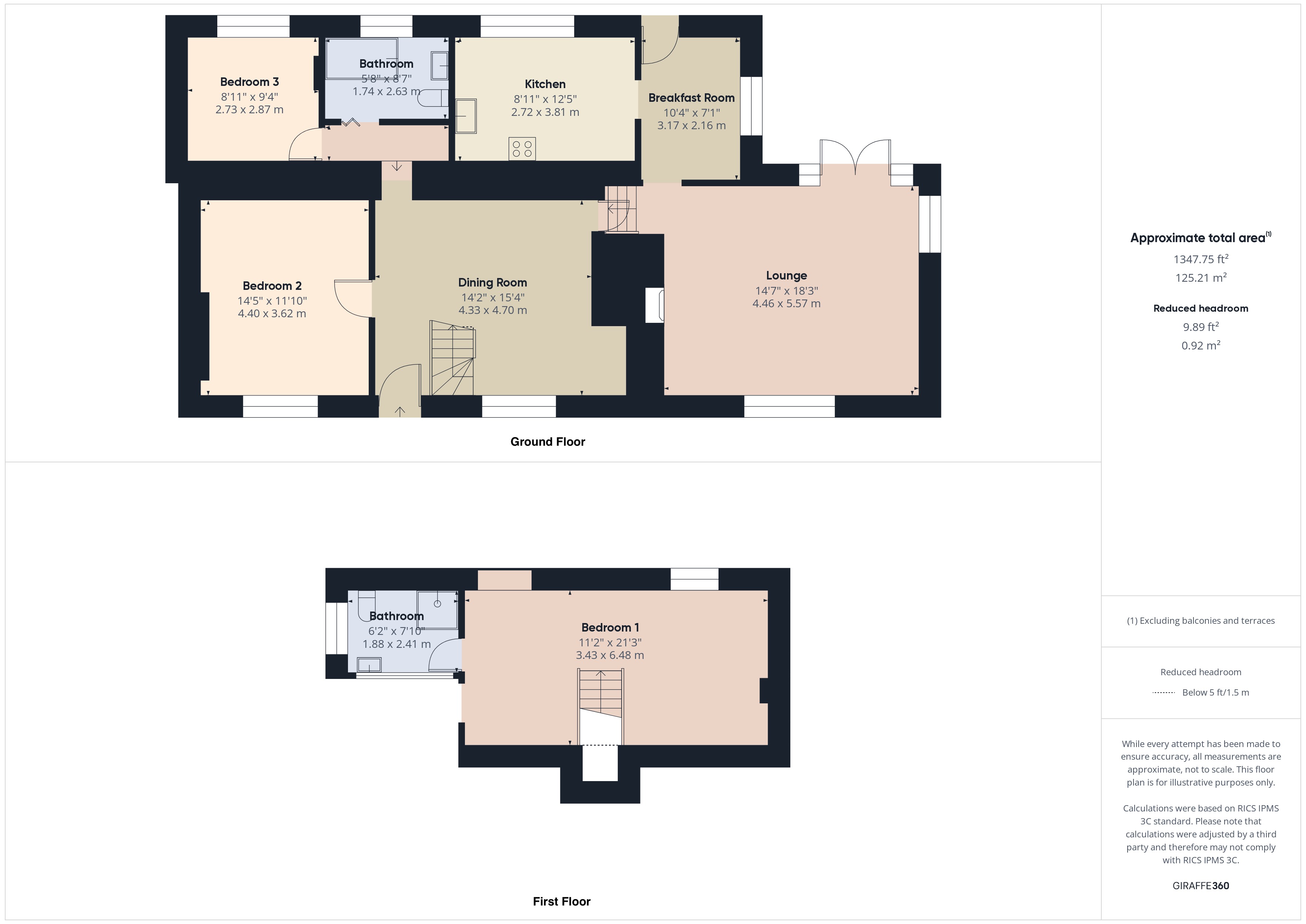
Entering the accommodation from the fore you reach the entrance hall and reception room which really sets the tone for the rest of the accommodation with its light and airy feel, exposed beams, solid oak flooring and staircase. To the left as you enter there is a very large, ground floor double bedroom with a window to the fore. Steps lead down to an inner hallway which provides access to the 3rd double bedroom and good size family bathroom. The reception area which is currently utilised as a dining area offers great versatility to suit a range of buyers needs. Leading from the dining room down a couple of steps you reach the large main lounge areal which acts as a wonderful social hub to the home. The lounge offers multiple aspect windows and French doors leading to the tranquil rear garden as well as a feature wood burning stove- perfect for cosy winter evenings. An opening from the lounge leads to a breakfast / utility area with external access to the garden and takes you to the modern, well-presented kitchen overlooking the rear garden. The first floor master suite oozes with natural light and currently comprises double bedroom with a seating area, en suite shower room and walk-in wardrobe. The property benefits from uPVC double glazing throughout and oil fired central heating.
Externally, Ash Hill truly stands alone, situated on just under 0.5 of an acre grounds in the most idyllic setting with open countryside views to the rear. Approaching from the fore there is a driveway with comfortable parking for multiple vehicles as well as a garage / storage shed and a car port. Side access either side of the property leads to the very large wrap around garden which is made up of multiple large lawn areas, patio seating areas, greenhouse, log stores and much more. The brook boundary running across the rear of the grounds adds to the special setting whilst you enjoy the views on those glorious summer afternoons and evenings.
Tenure: Freehold
Services: Mains water and electricity, oil fired central heating, private drainage.
Local Authority: Pembrokeshire County Council
Council Tax: Band E
EPC rating: D
Entrance Hall
Dining Room 15' 5" x 14' 2" (4.70m x 4.33m)
Lounge 18' 3" x 14' 8" (5.57m x 4.46m)
Breakfast / Utility Room 10' 5" x 7' 1" (3.17m x 2.16m)
Kitchen 12' 6" x 8' 11" (3.81m x 2.72m)
Bedroom 2 14' 5" x 11' 11" (4.40m x 3.62m)
Bedroom 3 9' 5" x 8' 11" (2.87m x 2.73m)
Bathroom 8' 8" x 5' 9" (2.63m x 1.74m)
First Floor
Bedroom 1 21' 3" x 11' 3" (6.48m x 3.43m)
En Suite 7' 11" x 6' 2" (2.41m x 1.88m)
Walk In Wardrobe






















