Cambrian Quay, Saundersfoot, SA69
Info
- ATTENTION INVESTORS!!!
- Stylish and immaculately presented coach house
- Fantastic Location At The Centre of Popular Seaside Resort
- Modern Day Open Plan Living
- 3 Bedrooms, En Suite& Family Bathroom
- Stones Throw Away From Fantastic Restaurants, Pubs & Shops
- Successful Holiday Let
- NO CHAIN
- 3 Minutes Walk To The Stunning Beach & Harbour
- EER- TBC
- 3 Bedrooms, En Suite & Family Bathroom
Property Summary
The Property
THE PROPERTY
This stylish and immaculately presented coach house offers generous modern day living. Located in the heart of sought-after coastal village Saundersfoot, this spacious and contemporary property offers an open plan living/dining/kitchen area, a master bedroom with en suite, two further bedrooms and a family bathroom. Currently being run as a successful holiday let due to it's perfect location, just a couple of minutes stroll to the glorious beach and harbour. An abundance of fantastic eateries, bars and unique shops on your doorstep! An ideal property for investors but equally would make a wonderful home for a lucky family wanting to be in the middle of it all! Externally, the property has a parking space for one car.
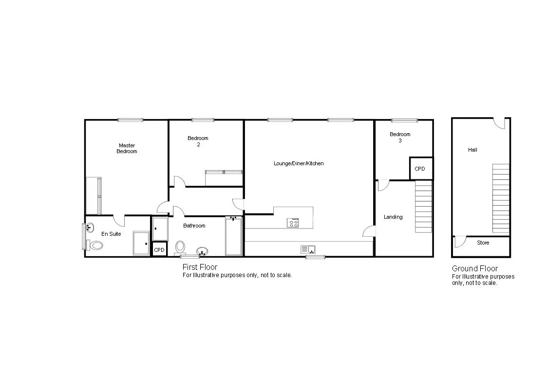
Hallway - 4.96m x 1.87m (16'3" x 6'1")
Enter the property through a uPVC door to the lower hall. Door to large storage cupboard and stairs to first floor landing.
Landing - 3.59m x 2.01m (11'9" x 6'7")
Doors to open plan kitchen/living room/dining room and third bedroom.
Kitchen/Dining/Living Room - 7.43m x 5.29m (24'4" x 17'4")
Kitchen
Deep recessed window to the rear. A range of matching wall and base units with a white granite worktop throughout. Stainless steel inset sink with mixer tap over - granite drainer to the side. Integral oven, microwave, dishwasher, washer/dryer and fridge. Kitchen Island with integral hob and stainless steel chimney hood extractor over. Storage drawers underneath. Ideal combi boiler housed in cupboard. Tiled flooring.
Living/Dining Room
Windows to the front. Two Velux windows. Bright and spacious living area with ample room for family sized dining and lounge suites.
Inner landing/hallway
Doors to the bedrooms and to the family bathroom.
Master Bedroom - 5.09m x 3m (16'8" x 9'10")
Window to front. Built in wardrobe with sliding mirrored doors. Door to Ensuite.
Ensuite - 2.19m x 2.5m (7'2" x 8'2")
Deep recessed frosted window to the side. Wash hand basin with mixer tap over, WC. Large enclosed shower with glazed double doors, mains connected shower. Partly tiled walls. Tiled flooring, heated towel rail.
Bedroom Two - 3m x 3.8m (9'10" x 12'5")
Window to front. Built in wardrobe with sliding mirrored doors.
Bedroom Three - 2.11m x 3.8m (6'11" x 12'5")
Window to the front. Door to cupboard above stairwell.
Externally
Allocated parking outside the property for one car.
Bathroom
Deep recessed frosted window to rear. Wash hand basin with mixer tap over, WC. Large enclosed shower with glazed double doors, mains connected shower & bath. Partly tiled walls. Tiled flooring, heated towel rail.
Property Information
We are advised the property is leasehold, with all mains services connected. 988 years remain on a 999 year lease.
The ground rent per annum is £250
Service charge is £1800
Insurance is £710
Directions
From Tenby travel north to the roundabout at New Hedges. Proceed straight across and take the first right turn into Sandyhill Road. Follow the road all the way to the centre of Saundersfoot until you reach the roundabout, take the first exit, take the next right behind the butchers, and the property will be around the corner on the right.
Open-plan Kitchen/Living Room 24' 3" x 17' 5" (7.39m x 5.30m)
Hallway
Master Bedroom 16' 8" x 9' 10" (5.07m x 3.00m)
Ensuite 7' 2" x 7' 1" (2.18m x 2.17m)
Bedroom 2 12' 6" x 9' 10" (3.80m x 2.99m)
Bedroom 3 8' 1" x 6' 2" (2.47m x 1.89m)
Bathroom 11' 4" x 6' 2" (3.45m x 1.89m)











