Broadmoor, Kilgetty, SA68
Info
- Bright & Spacious Detached Bungalow
- Would Benefit From Some Modernisation
- Great Opportunity To Put Your Own Stamp On The Property - Potential To Extend Up & Out
- 3 Double Bedrooms, 1 Shower Room, 2 Reception Rooms
- Off Road Parking & Newly Built Car Port
- Good Sized Gardens Front & Rear
- Within Easy Reach Of Local Amenities & Schools
- Oil Fired Central Heating, uPVC Double Glazing
- No Upward Chain
- EER - F
Property Summary
The Property
THE PROPERTY
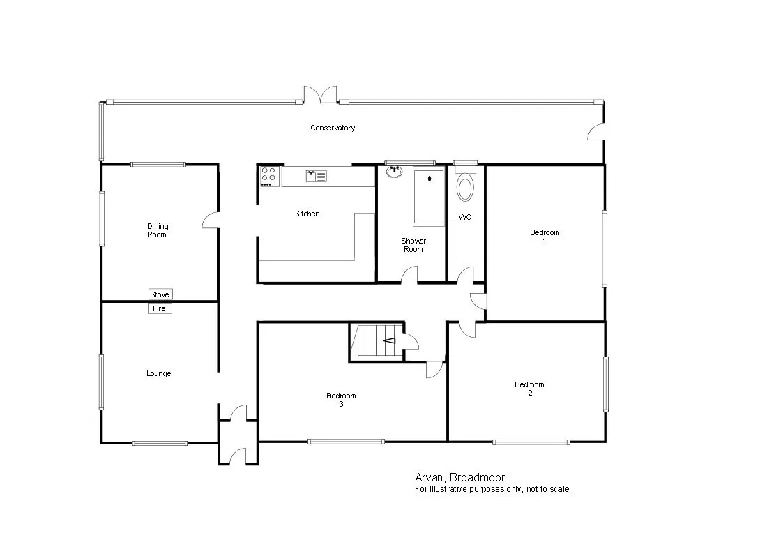
Situated in the village of Broadmoor, this detached bungalow offers naturally well lit and well configured accommodation comprising Porch, Hall, Lounge, Dining Room, Kitchen, Conservatory, Shower Room, WC , Three Bedrooms and two large Loft Rooms. To the front is a lawned garden with off road parking and a car port to the side. The rear garden is also of a good size with a paved patio. The property also benefits from uPVC double glazing and oil fired central heating. In need of some modernisation, Arvan is an ideal first purchase and offers an amazing opportunity to put your own stamp on the property, with great potential to extend up and out subject to the necessary permission. Amenities for everyday needs including supermarket, doctors surgery, train station, etc can be found in Kilgetty which is about two miles away
Porch
Enter through glazed uPVC door in to Porch. Windows to each side. Glazed hardwood door with sidelite to Hall.
Hall
L shape Hall. Doors to all rooms. Loft hatch. Laminate flooring. Door with half tread staircase to Loft.
Lounge - 3.6m x 3.5m (11'9" x 11'5")
Double aspect with windows to front and side. Electric fireplace with tiled surround and hearth.
Dining Room - 3.6m x 3.5m (11'9" x 11'5")
Double aspect with windows to side and rear. Oil fired Sandyford range which provides hot water and central heating to the property. Double doors to built in cupboard.
Kitchen - 2.9m x 2.4m (9'6" x 7'10")
Opening to Conservatory. Fitted with a range of wall and base units with matching worktop. Inset stainless steel sink and drainer. Space and connection for electric cooker, washing machine and under counter fridge freezer. Part tiled walls. Vinyl flooring.
Conservatory
Lean-to Conservatory with French doors to rear and uPVC door to side. Glazed to side and rear. Polycarbonate roof.
Bedroom 1 - 3.5m x 2.8m (11'5" x 9'2")
Window to side. Laminate flooring.
Bedroom 2 - 3.7m x 3.5m (12'1" x 11'5")
Double aspect with windows to front and side. Laminate flooring.
Bedroom 3 - 3.6m x 3.5m (11'9" x 11'5")
Window to front. Laminate flooring.
Shower Room
Frosted window to the front. Electric shower in walk in enclosure. Wash hand basin. Fully tiled walls.
WC
Frosted window to rear. WC.
Loft Rooms
The property benefits from two large Loft Rooms, accessed via a half tread staircase from the Hall; this space offer great potential to extend into to create additional accommodation, subject to the necessary consent.
Externally
The property is approached from the front over a gated driveway which provides off road parking for two cars, with additional parking available in a newly built car port. There are good sized enclosed gardens to front and rear, with a lawned area at the front and a paved patio at the rear offering a beautiful spot for al fresco dining and relaxing.
Property Information
We are advised the property is Freehold.
Central heating and hot water is provided by an oil fired Sandyford range.
Mains power, water and drainage.
Council tax band E.
Directions
From Tenby travel north on the A478 towards Kilgetty. Continue through Wooden into Pentlepoir until you reach The Old Pump Filling Station (on the right hand side). Turn immediate left into Templebar Road. Upon reaching the end of Templebar road, turn right, then continue stright over at the junction. Arvan will be found on the right directly oppoiste the Cross Inn, as indicated by out For Sale board.













