Begelly, Kilgetty, SA68
Info
- Level Building Plot with Full Planning Permission to build a 4 Bed, 3 Bath 3 Storey House
- With Off Street Parking and Garden
- Outdoor Sun Terrace
- Great Investment Opportunity
- EPC - B
Property Summary
The Property
THE PROPERTY
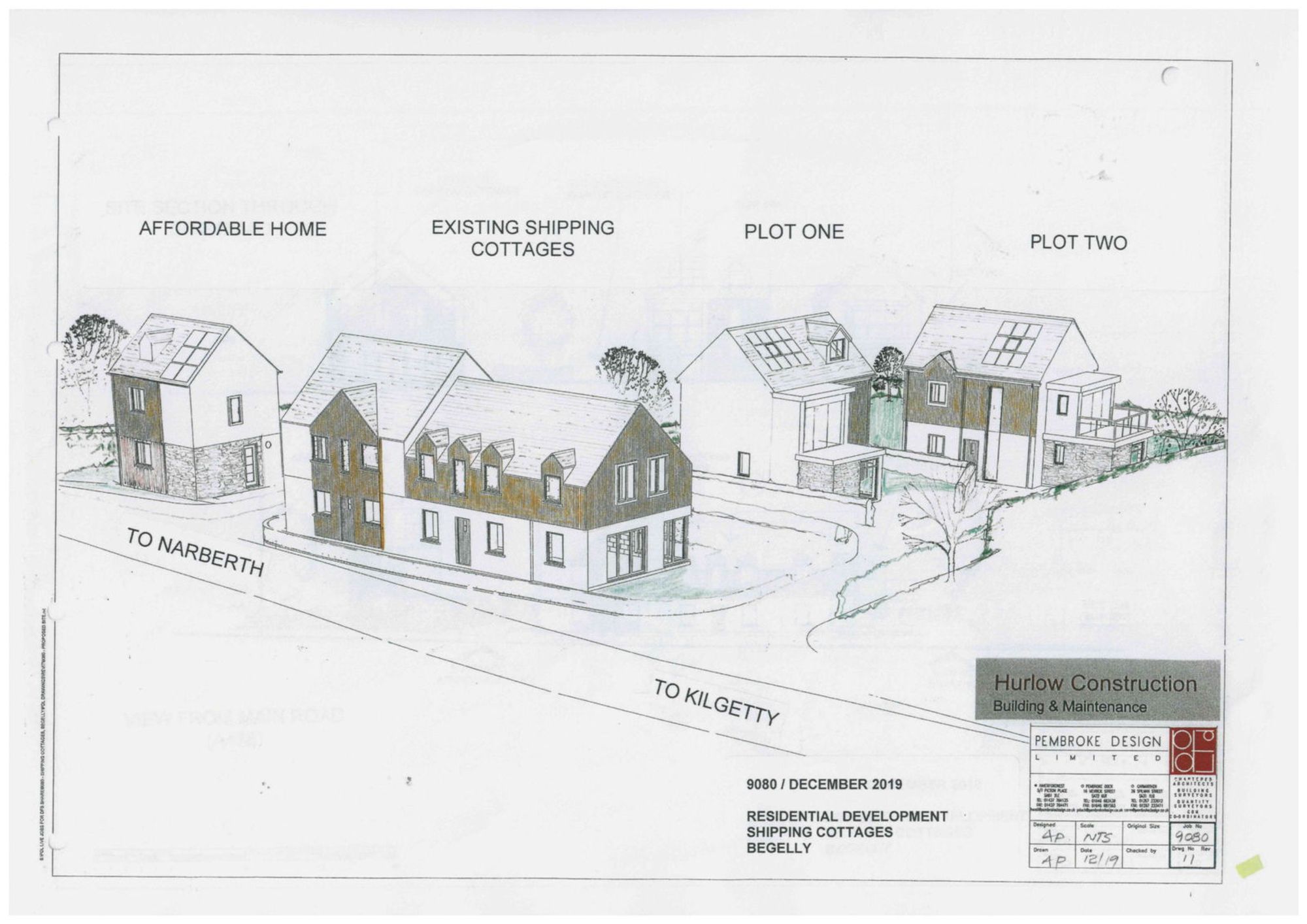
A rare opportunity to purchase a building plot (identified as PLOT 2) with full Planning Permission for the erection of a 3-Storey, 4-Bedroom, 3-Bathroom detached house in a new development in the semi-rural village of Begelly. The plot is situated opposite the village shop, offering fabulous views over the rolling countryside, and is only a short distance from the popular resorts of Tenby, Saundersfoot, and the market towns of Kilgetty and Narberth, with amenities such as pubs, restaurants and schools at all levels, with excellent public transport links. Planning Reference 19/1011/PA.
Directions
From Tenby take the A478 to Kilgetty. At the first roundabout proceed straight across towards Begelly, past the Filling Station on the left and continue up Begelly Hill into the village. You will find 3 Shipping Cottages just after Begelly Stores on the right hand side, as indicated by our For Sale board.








