Back Lane, Narberth, SA67
£90,000
Guide Price
Info
- Freehold Deveolpment Site
- Narberth Town Centre
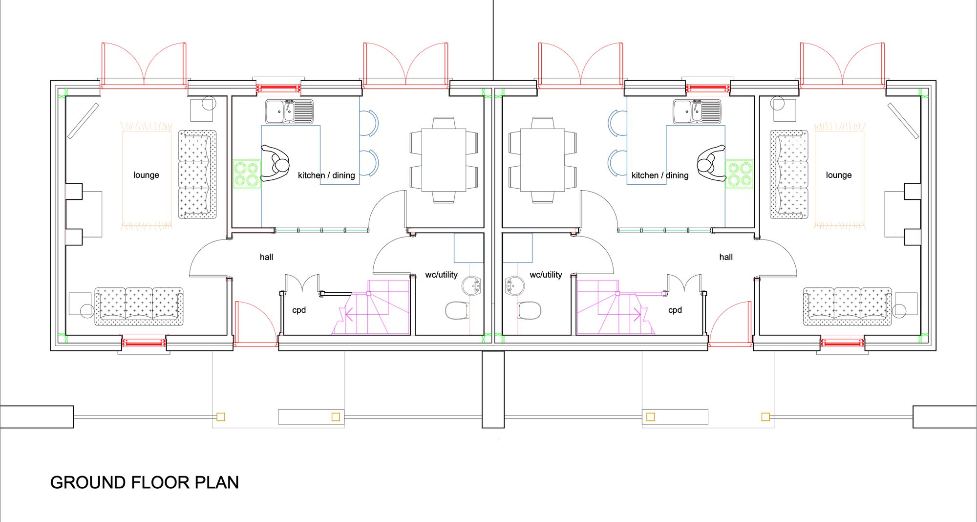
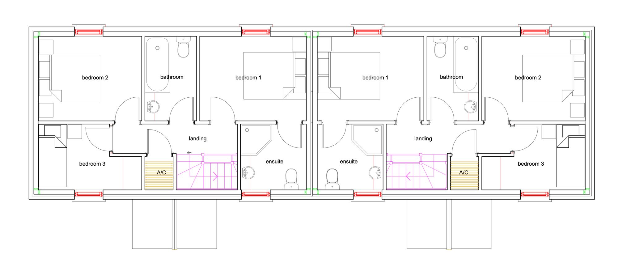
- Planning for 2 x Three Bedroom Semi Detached Properties
The Property
A rare and exciting chance to purchase two Freehold plots with approved planning permission for the construction of two attractive three-bedroom semi-detached cottages, located in the heart of the vibrant market town of Narberth.
Ideally situated just a short stroll from the town’s lively high street, the site provides convenient access to an excellent range of amenities, including boutique shops, cafés, restaurants, and essential services—making it a superb location for either permanent homes or highly desirable holiday lets.
Copies of the planning permission can be obtained via Pembrokeshire Council using reference 21/0242/PA.




